|
From: |
Tania Campbell |
|
To: |
Carline, Paul |
|
Cc: |
Daken, Cherie; Hudson, Stephen; Soal, Philip |
|
Subject: |
Re: Fire Awareness Programme. [9(2)(a)| Students. |
|
Date: |
Friday, 20 March 2020 2:22:15 pm |
|
Attachments: |
image001.png |
Thank you for letting me know.
On Fri, Mar 20, 2020 at 1:48 PM Carline, Paul <Paul.Carline@fireandemergency.nz> wrote:
Hi Tania, I have just had a directive from Management that I cannot work with any more Fire Awareness Intervention Cases with the public unless they are urgent. So at the moment I will be unable to work with your Rangatahi until I get permission from my supervisor.
I am sorry for my U-turn but because of the corona -virus situation I am unable to help at the moment. As soon as I am allowed I will be back in touch.
Kind regards,
Paul Carline.
Senior Fire Fighter. Remutuka Station.
Fire Awareness Practitioner, Fire Wise Ambassador.
|
Alcohol Impairment Educator. | |
![]() |
P04 5263078 |
3 (2)(a)
From: Tania Campbell <cl@naenae-college.school.nz>
Sent: Friday, 20 March 2020 1:34 PM
To: Carline, Paul <Paul.Carline@fireandemergency.nz>
9(2)(a)
Subject: Re: Fire Awareness Programme.
Students.
Sorry Monday 23 March.
On Fri, Mar 20, 2020 at 1:32 PM Tania Campbell <cl@naenae-college.school.nz> wrote:
Hi Paul
Monday would be
g
9(2)(a)
t. Can you make it from 9:00 am Monday 22 March and I can first then the
call down the
after that. How does that sound to you?
Regards
On Fri, Mar 20, 2020 at 1:16 PM Carline, Paul <Paul.Carline@fireandemergency.nz> wrote:
Hi Tania, programme works best if it is done on an individual basis. I can work with
, a
the
students as one group if that will suit you. The
student I can do
individually. Monday, Tuesday or Friday next week would suit me. If you make the
time I shall be there. We will just need a room to work in.
Please let me know what works for you.
Kind regards,
Paul Carline.
Senior Fire Fighter. Remutuka Station.
Fire Awareness Practitioner, Fire Wise Ambassador.
Alcohol Impairment Educator.
P04 5263078
Paul.Carline@fireandemergency.nz
From: Tania Campbell <cl@naenae-college.school.nz>
Sent: Friday, 20 March 2020 11:40 AM
To: Carline, Paul <Paul.Carline@fireandemergency.nz>
Subject: Re: Fire Awareness Programme. |9(2)(a) Students.
Morning Paul
Thank you for getting back to me. It would be great if you can come in to meet with
a
these
students
) as a group if possible to run the programme. We will
accommodate any time that suits you. We also have a to do the programme separately.
student who will need
9(2)(a)
The
students are:
The
student:
9(2)a
Just let me know the dates and times and I will organise a place at this end for you.
Thank you in anticipation
Kind regards.
On Fri, Mar 20, 2020 at 10:51 AM Carline, Paul
Good Morning Tania, Paul Carline here from Remutaka Station. I left you a phone message this morning on your answering system.
m(a)
Stu Law sent me a referral for
students fr om your college
>e very happy to come into the school and work with these children with our Fire Intervention Programme. This worked well last year with several other stirdents from your school. Each student spends approximately 60 minutes in a one on one meeting with myself and a colleague. It is a low key education based programme where the emphasis is on learning and a homework task is set.
I would
Another meeting is normally held a week later which normally lasts 45 minutes. That will be the end of the progr amme for the clients.
If you would like your students to take part in this programme please let me know. I will need the name and addresses of the students along with their' DOB’s. Also the postal addresses and phone numbers for their' caregivers, just so we can put it on file.
Kind regards,
Paul Car line.
Senior Fire Fighter. Remutuka Station.
Fire Awareness Practitioner, Fire Wise Ambassador.
Alcohol Impairment Educator.
P04 5263078
Paul.Carline@fireandemergency.nz
Notice: This email and any attachments may contain information that is confidential or the subject of legal privilege. If you received it in error:
1. Please let us know immediately by return email and then delete the email and your reply.
2. You must not use, copy or disclose any of the information contained in this email.
There is no warranty that this email is error or virus free.
If this is a private communication, it does not represent the views of the organisation.
Tania Campbell
Assistant Principal
NAENAE COLLEGE
910 High Street, Private Box 31-171, Lower Hutt, New Zealand
T: 64-4-567 7175 ext 837
F: 64-4-567 3009
This email was sent and protected by SmartGate™
Notice: This email and any attachments may contain information that is confidential or the subject of legal privilege. If you received it in error:
1. Please let us know immediately by return email and then delete the email and your reply.
2. You must not use, copy or disclose any of the information contained in this email.
There is no warranty that this email is error or virus free.
If this is a private communication, it does not represent the views of the organisation.
Tania Campbell
Assistant Principal
NAENAE COLLEGE
910 High Street, Private Box 31-171, Lower Hutt, New Zealand
T: 64-4-567 7175 ext 837
F: 64-4-567 3009
Tania Campbell
Assistant Principal
NAENAE COLLEGE
910 High Street, Private Box 31-171, Lower Hutt, New Zealand
T: 64-4-567 7175 ext 837
F: 64-4-567 3009
This email was sent and protected by SmartGate™
|
H |
B |
B |
B |
B |
B |
Notice: This email and any attachments may contain information that is confidential or the subject of legal privilege. If you received it in error:
1. Please let us know immediately by return email and then delete the email and your reply.
2. You must not use, copy or disclose any of the information contained in this email.
There is no warranty that this email is error or virus free.
If this is a private communication, it does not represent the views of the organisation.
Tania Campbell
Assistant Principal
NAENAE COLLEGE
910 High Street, Private Box 31-171, Lower Hutt, New Zealand
T: 64-4-567 7175 ext 837
F: 64-4-567 3009
This email was sent and protected by SmartGate™
|
From: To: Subject: Date: Attachments: |
Tania Campbell Carline, Paul Re: Fire Awareness Programme. 9(2)(a) Students. Friday, 20 March 2020 2:25:25 pm image001.png |
Is there any way you could drop off something that we could work through with them perhaps?
On Fri, Mar 20, 2020 at 2:21 PM Tania Campbell <cl@naenae-college.school.nz> wrote: Thank you for letting me know.
On Fri, Mar 20, 2020 at 1:48 PM Carline, Paul <Paul.Carline@fireandemergency.nz> wrote:
Hi Tania, I have just had a directive from Management that I cannot work with any more Fire Awareness Intervention Cases with the public unless they are urgent. So at the moment I will be unable to work with your Rangatahi until I get permission from my supervisor.
I am sorry for my U-turn but because of the corona -virus situation I am unable to help at the moment. As soon as I am allowed I will be back in touch.
Kind regards,
Paul Carline.
Senior Fire Fighter. Remutuka Station.
Fire Awareness Practitioner, Fire Wise Ambassador.
M:
|
Alcohol Impairment Educator. |
![]() |
9(2)a
P04 5263078
From: Tania Campbell <cl@naenae-college.school.nz>
Sent: Friday, 20 March 2020 1:34 PM
To: Carline, Paul <Paul.Carline@fireandemergency.nz>
Subject: Re: Fire Awareness Programme. 9(2)(a) Students.
Sorry Monday 23 March.
On Fri, Mar 20, 2020 at 1:32 PM Tania Campbell <cl@naenae-college.school.nz> wrote:
Hi Paul
Monday would be great. Can you make it from 9:00 am Monday 22 March and I
first then the
after that. How does that sound
can call to you?
Regards
On Fri, Mar 20, 2020 at 1:16 PM Carline, Paul
<Paul.Carline@fireandemergency.nz> wrote:
Hi Tania, programme works best if it is done on an individual basis. I can work
, a
with the
students as one group if that will suit you. The
student I can
do individually. Monday, Tuesday or Friday next week would suit me. If you make the time I shall be there. We will just need a room to work in.
Please let me know what works for you.
Kind regards,
Paul Carline.
Senior Fire Fighter. Remutuka Station.
Fire Awareness Practitioner, Fire Wise Ambassador.
Alcohol Impairment Educator.
![]() |
M: 9(2)a |
P04 5263078
Paul.Carline@fireandemergency.nz
From: Tania Campbell <cl@naenae-college.school.nz>
Sent: Friday, 20 March 2020 11:40 AM
To: Carline, Paul <Paul.Carline@fireandemergency.nz>
Subject: Re: Fire Awareness Programme. 9(2)(a) Students.
Morning Paul
Thank you for getting back to me. It would be great if you can come in to meet
, a
9(2)(a)
with these
students
as a group if possible to run the programme.
We will accommodate any time that suits you. We also have a who will need to do the programme separately.
student
3 (2)(a)
The
students are:
The
student:
9(2)a
Just let me know the dates and times and I will organise a place at this end for you.
Thank you in anticipation
Kind regards.
On Fri, Mar 20, 2020 at 10:51 AM Carline, Paul
<EaiilXiuliii£&fiL£^^ wrote:
Good Morning Tania, Paul Carline here horn Remutaka Station. I left you a phone message this morning on your answering system.
Stir Law sent me a referral for
students from your college
>e very happy to come into the school and work with these childr en with our Fir e Intervention Programme. This worked well last year with several other students from your school. Each student spends approximately 60 minutes irr a one on one meeting with myself and a colleague. It is a low key education based programme where the emphasis is on learning and a homework task is set.
I would
Another meeting is normally held a week later which normally lasts 45 minutes. That will be the end of the programme for the clients.
If you would like your students to take part in this programme please let me know. I will need the name and addresses of the students along with their DOB’s. Also the postal addresses and phone numbers for their caregivers, just so we can put it on file.
Kind regards,
Paul Carline.
Senior Fire Fighter. Remutuka Station.
Fire Awareness Practitioner, Fire Wise Ambassador.
Alcohol Impairment Educator.
P04 5263078
Paul.Carline@fireandemergency.nz
Notice: This email and any attachments may contain information that is confidential or the subject of legal privilege. If you received it in error:
1. Please let us know immediately by return email and then delete the email and your reply.
2. You must not use, copy or disclose any of the information contained in this email.
There is no warranty that this email is error or virus free.
If this is a private communication, it does not represent the views of the organisation.
Tania Campbell
Assistant Principal
NAENAE COLLEGE
910 High Street, Private Box 31-171, Lower Hutt, New Zealand
T: 64-4-567 7175 ext 837
F: 64-4-567 3009
This email was sent and protected by SmartGate™
Notice: This email and any attachments may contain information that is confidential or the subject of legal privilege. If you received it in error:
1. Please let us know immediately by return email and then delete the email and your reply.
2. You must not use, copy or disclose any of the information contained in this email.
There is no warranty that this email is error or virus free.
If this is a private communication, it does not represent the views of the organisation.
Tania Campbell
Assistant Principal
NAENAE COLLEGE
910 High Street, Private Box 31-171, Lower Hutt, New Zealand
T: 64-4-567 7175 ext 837
F: 64-4-567 3009
Tania Campbell
Assistant Principal
NAENAE COLLEGE
910 High Street, Private Box 31-171, Lower Hutt, New Zealand
T: 64-4-567 7175 ext 837
F: 64-4-567 3009
This email was sent and protected by SmartGate™
Notice: This email and any attachments may contain information that is confidential or the subject of legal privilege. If you received it in error:
1. Please let us know immediately by return email and then delete the email and your reply.
2. You must not use, copy or disclose any of the information contained in this email.
There is no warranty that this email is error or virus free.
If this is a private communication, it does not represent the views of the organisation.
Tania Campbell
Assistant Principal
NAENAE COLLEGE
910 High Street, Private Box 31-171, Lower Hutt, New Zealand
T: 64-4-567 7175 ext 837
F: 64-4-567 3009
Tania Campbell
Assistant Principal
NAENAE COLLEGE
910 High Street, Private Box 31-171, Lower Hutt, New Zealand
T: 64-4-567 7175 ext 837
F: 64-4-567 3009
This email was sent and protected by SmartGate™
From:
To:
Subject:
Date:
Attachments:
cl
Carline, Paul
Re: Fire Awareness Programme. 9(2)(a) Students.
Sunday, 22 March 2020 12:17:00 pm
image001.png
Thanks for your email. I will get back to you.
Regards
Sent from my Samsung Galaxy smartphone.
--------Original message --------
From: "Carline, Paul" <Paul.Carline@fireandemergency.nz>
Date: 22/03/2020 09:38 (GMT+12:00)
To: Tania Campbell <cl@naenae-college.school.nz>
Cc: "Daken, Cherie" <Cherie.Daken@fireandemergency.nz>, "Hudson, Stephen"
9(2)(a)
Subject: Re: Fire Awareness Programme.
Students.
Hi Tania, I have been told to work from home. The books I have I could drop off but they
relate more to fire setting rather than operating manual fire points. Perhaps a Skype
session from my home if i can get the computer here to do it or just a phone conversation
9(2)(a)
1 (2)(a)
meeting with the
students and a separate one with the
student.
You would need to have an adult with the students whilst I was having this meeting with them. It would not be the full FAI Programme but it would be beneficial to the students re their behaviour.
What are your thoughts.
Thanks Paul.
From: Tania Campbell <cl@naenae-college.school.nz>
Sent: 20 March 2020 14:24
To: Carline, Paul <Paul.Carline@fireandemergency.nz>
Subject: Re: Fire Awareness Programme.
9(2)(a)
Students.
Is there any way you could drop off something that we could work through with them perhaps?
On Fri, Mar 20, 2020 at 2:21 PM Tania Campbell <cl@naenae-college.school.nz> wrote: Thank you for letting me know.
On Fri, Mar 20, 2020 at 1:48 PM Carline, Paul <Paul.Carline@fireandemergency.nz> wrote:
Hi Tania, I have just had a directive from Management that I cannot work with any more Fire Awareness Intervention Cases with the public unless they are urgent. So at the moment I will be unable to work with your Rangatahi until I get permission from
my supervisor.
I am sorry for my U-turn but because of the corona -virus situation I am unable to help at the moment. As soon as I am allowed I will be back in touch.
Kind regards,
Paul Carline.
Senior Fire Fighter. Remutuka Station.
Fire Awareness Practitioner, Fire Wise Ambassador.
|
Alcohol Impairment Educator. | |
![]() |
M: 9(2)a P04 5263078 |
Paul.Carline@fireandemergency.nz
From: Tania Campbell <cl@naenae-college.school.nz>
Sent: Friday, 20 March 2020 1:34 PM
To: Carline, Paul <Paul.Carline@fireandemergency.nz>
Subject: Re: Fire Awareness Programme. Year Nine Students.
Sorry Monday 23 March.
On Fri, Mar 20, 2020 at 1:32 PM Tania Campbell <cl@naenae-college.school.nz> wrote:
Hi Paul
Monday would be great. Can you make it from 9:00 am Monday 22 March and I
can call down the to you?
9(2)(a)
first then the
after that. How does that sound
Regards
On Fri, Mar 20, 2020 at 1:16 PM Carline, Paul
<Paul.Carline@fireandemergency.nz> wrote:
Hi Tania, programme works best if it is done on an individual basis. I can work
with the
, a
students as one group if that will suit you. The
student I can
do individually. Monday, Tuesday or Friday next week would suit me. If you make the time I shall be there. We will just need a room to work in.
Please let me know what works for you.
Kind regards,
Paul Carline.
Senior Fire Fighter. Remutuka Station.
Fire Awareness Practitioner, Fire Wise Ambassador.
M:
|
Alcohol Impairment Educator. |
![]() |
2)a
P04 5263078
Sent: Friday, 20 March 2020 11:40 AM
To: Carline, Paul <Paul.Carline@fireandemergency.nz>
Subject: Re: Fire Awareness Programme. 9(2)(a) Students.
Morning Paul
Thank you for getting back to me. It would be great if you can come in to meet
' (2)(a:
RW)
with these
students
as a group if possible to run the programme.
We will accommodate any time that suits you. We also have a who will need to do the programme separately.
student
2 (2)(a)
The
students are:
9(2)a
9(2)a
The
student:
' 2)a
Just let me know the dates and times and I will organise a place at this end for you.
Thank you in anticipation
Kind regards.
On Fri, Mar 20, 2020 at 10:51 AM Carline, Paul
<Paul.Carline@fireandemergency.nz> wrote:
Good Morning Tania, Paul Carline here from Remutaka Station. I left you a phone message this morning on your answering system.
|
Stu Law sent me a referral for |
![]() |
students from your- college
11 would be veiy happy to come into the school and work with these childr en with our Fir e Intervention Programme.
This worked well last year with several other students from your school. Each student spends approximately 60 minutes in a one on one meeting with myself and a colleague. It is a low key education based programme where the emphasis is on learning and a homework task is set.
Another meeting is normally held a week later which normally lasts 45 minutes. That will be the end of the programme for the clients.
If you would like your students to take part in this progr amme please let me know. I will need the name and addr esses of the students along with their DOB’s. Also the postal addresses and phone numbers for then caregivers, just so we can put it on file.
Kind regards,
Paul Car line.
Senior Fire Fighter. Remutuka Station.
Fire Awareness Practitioner, Fire Wise Ambassador.
Alcohol Impairment Educator.
Notice: This email and any attachments may contain information that is confidential or the subject of legal privilege. If you received it in error:
1. Please let us know immediately by return email and then delete the email and your reply.
2. You must not use, copy or disclose any of the information contained in this email.
There is no warranty that this email is error or virus free.
If this is a private communication, it does not represent the views of the organisation.
Tania Campbell
Assistant Principal
NAENAE COLLEGE
■
910 High Street, Private Box 31-171, Lower Hutt, New Zealand
T: 64-4-567 7175 ext 837
F: 64-4-567 3009
This email was sent and protected by SmartGate™
Notice: This email and any attachments may contain information that is confidential or the subject of legal privilege. If you received it in error:
1. Please let us know immediately by return email and then delete the email and your reply.
2. You must not use, copy or disclose any of the information contained in this email.
There is no warranty that this email is error or virus free.
If this is a private communication, it does not represent the views of the organisation.
Tania Campbell
Assistant Principal
NAENAE COLLEGE
910 High Street, Private Box 31-171, Lower Hutt, New Zealand
T: 64-4-567 7175 ext 837
F: 64-4-567 3009
Tania Campbell
Assistant Principal
NAENAE COLLEGE
910 High Street, Private Box 31-171, Lower Hutt, New Zealand
T: 64-4-567 7175 ext 837
F: 64-4-567 3009
This email was sent and protected by SmartGate™
Notice: This email and any attachments may contain information that is confidential or the subject of legal privilege. If you received it in error:
1. Please let us know immediately by return email and then delete the email and your reply.
2. You must not use, copy or disclose any of the information contained in this email.
There is no warranty that this email is error or virus free.
If this is a private communication, it does not represent the views of the organisation.
Tania Campbell
Assistant Principal
NAENAE COLLEGE
910 High Street, Private Box 31-171, Lower Hutt, New Zealand
T: 64-4-567 7175 ext 837
F: 64-4-567 3009
Tania Campbell
Assistant Principal
NAENAE COLLEGE
910 High Street, Private Box 31-171, Lower Hutt, New Zealand
T: 64-4-567 7175 ext 837
F: 64-4-567 3009
This email was sent and protected by SmartGate™
Notice: This email and any attachments may contain information that is confidential or the subject of legal privilege. If you received it in error:
1. Please let us know immediately by return email and then delete the email and your reply.
2. You must not use, copy or disclose any of the information contained in this email.
There is no warranty that this email is error or virus free.
If this is a private communication, it does not represent the views of the organisation.
This email was sent and protected by SmartGate™
|
From: |
Alex Maehe |
|
To: |
Law, Stuart |
|
Subject: |
Fire Awareness Programme |
|
Date: |
Tuesday, 15 September 2020 8:28:12 am |
Kia ora Stuart
From time to time and more recently we have had fires lit on the school site and would like to access your programme for students we have identified needing it and with the consent of parents.
Please let me know how you would like to proceed from here.
Nga mihi
Alex Maehe
Deputy Principal
NAENAE COLLEGE
910 High Street, Private Box 31-171, Lower Hutt, New Zealand
Phone No: 04 567 7175
Extension internal-only 549
9(2)a
Moblie:
This email message is intended solely for the person or entity to which it is addressed. The information it contains is confidential and may be legally privileged. Any review, retransmission, dissemination or other use of this email may be unlawful. If you are not the intended recipient, please notify us immediately and destroy the email from all sources.
This email was sent and protected by SmartGate™
|
From: |
Alex Maehe |
|
To: |
Daken, Cherie |
|
Subject: |
Re: FW: Fire Awareness Programme |
|
Date: |
Wednesday, 16 September 2020 7:21:06 am |
|
Attachments: |
FAIP-Referral-Form.doc |
Thanks very much Cherie.
Ngā mihi
On Tue, Sep 15, 2020 at 9:14 AM Daken, Cherie <Cherie.Daken@fireandemergency.nz> wrote:
Hi Alex
Stuart Law has pass your email on to me. I look after the Fire Awareness Programme (FAIP) for our Region. I have attached our referral form, if you could fill in the form for each of the students and email it back to me, then I can get one of my practitioners on to the case.
Thanks
Business Services Coordinator
Te Ūpoko Rohe (Region 3) Headquarters
Level M, 2 Oriental Parade, Wellington 6011
PO Box 19090, Marion Square, Wellington 6141
DDI: 9(2)(a)
cherie.daken@fireandemergency.nz
From: Alex Maehe [mailto:mea@naenae-college.school.nz]
Sent: Tuesday, 15 September 2020 8:28 AM
To: Law, Stuart <Stuart.Law@fireandemergency.nz>
Subject: Fire Awareness Programme
Kia ora Stuart
From time to time and more recently we have had fires lit on the school site and would like to access your programme for students we have identified needing it and with the consent of parents.
Please let me know how you would like to proceed from here.
Nga mihi
Alex Maehe
Deputy Principal
NAENAE COLLEGE
910 High Street, Private Box 31-171, Lower Hutt, New Zealand
Phone No: 04 567 7175
Extension internal-only 549
9(2)a
Moblie:
This email message is intended solely for the person or entity to which it is addressed. The information it contains is confidential and may be legally privileged. Any review, retransmission, dissemination or other use of this email may be unlawful. If you are not the intended recipient, please notify us immediately and destroy the email from all sources.
This email was sent and protected by SmartGate™
Notice: This email and any attachments may contain information that may be subject to an obligation of confidence or the subject of legal privilege.
If you received it in error:
1. Please let us know immediately by return email and then delete the email and your reply.
2. You must not use, copy or disclose any of the information contained in this email.
There is no warranty that this email is error or virus free.
If this is a private communication, it does not represent the views of the organisation.
Alex Maehe
Deputy' Principal
NAENAE COLLEGE
910 High Street, Private Box 31-171, Lower Hutt, New Zealand Phone No: 04 567 7175
Extension internal-only 549
Moblie:
This email message is intended solely for the person or entity to which it is addressed. The information it contains is confidential and may be legally privileged. Any review, retransmission, dissemination or other use of this email may be unlawful. If you are not the intended recipient, please notify us immediately and destroy the email from all sources.
This email was sent and protected by SmartGate™
|
From: Alex Maehe To: Daken, Cherie | ||
| ||
|
Date: Wednesday, 16 September 2020 7:39:42 am Attachments: FAIP-Referral-m. doc |
Kia ora Cherie
Please find attached a referral form for p2)a
Look forward to hearing from you.
Ngā mihi
-
Alex Maehe
Deputy Principal
NAENAE COLLEGE
I
910 High Street, Private Box 31-171, Lower Hutt, New Zealand
Phone No: 04 567 7175
Extension internal-only 549
Moblie:
This email message is intended solely for the person or entity to which it is addressed. The information it contains is confidential and may be legally privileged. Any review, retransmission, dissemination or other use of this email may be unlawful. If you are not the intended recipient, please notify us immediately and destroy the email from all sources.
This email was sent and protected by SmartGate™
NEW ZEALAND
| ||||||||||||||||||||||||||||||||||||||||||||||||||||||||||||||||||||||||||||||||||||||||||||||||||||||||||||||||||||||||||||||||||||||||||||||||||||||||||||||||||||||||||||||||||||||||||||||||||||||||||||||||||||||||||||||||||||||||||||||||||||||||||||||||||||||||||||||||||||||||||||||||||||
|
Please forward by e-mail to FAIP@FireandEmergency.nz | ||||||||||||||||||||||||||||||||||||||||||||||||||||||||||||||||||||||||||||||||||||||||||||||||||||||||||||||||||||||||||||||||||||||||||||||||||||||||||||||||||||||||||||||||||||||||||||||||||||||||||||||||||||||||||||||||||||||||||||||||||||||||||||||||||||||||||||||||||||||||||||||||||||
|
From: |
Alex Maehe |
|
To: Subject: |
Daken, Cherie Referral for 9(2)(a) |
|
Date: |
Tuesday, 27 October 2020 10:18:44 am |
|
Attachments: |
FAIP-Referral-||a. doc |
Kia ora Cherie
Please find attached a referral form for p(2)a
Look forward to hearing from you.
Ngā mihi
-
Alex Maehe
Deputy Principal
NAENAE COLLEGE
I
910 High Street, Private Box 31-171, Lower Hutt, New Zealand
Phone No: 04 567 7175
Extension internal-only 549
Moblie:
This email message is intended solely for the person or entity to which it is addressed. The information it contains is confidential and may be legally privileged. Any review, retransmission, dissemination or other use of this email may be unlawful. If you are not the intended recipient, please notify us immediately and destroy the email from all sources.
This email was sent and protected by SmartGate™
NEW ZEALAND
|
Date: | ||||
|
Time: | ||||
|
Child's |
Ethnicity: ||^B | |||
|
Name: EE^^H | ||||
|
Residence: |
Prior incidents attended by | |||
|
Age ggg |
Home |
Fire and Emeraenc^NZ | ||
|
In^titi itinnl | ||||
|
D.O.B KM | ||||
|
Gender | ||||
|
Parent's | ||||
|
(or caregiver) ^^^^M | ||||
|
Address: | ||||
|
Phone: | ||||
|
Date S^^^H |
1 |
Home alone? ■ | ||
|
fire-setting occurred? | ||||
|
Where did the fire-setting occur? | ||||
|
i-iome: |
School: | |||
|
Other: (describe) | ||||
|
Details of the fire: What was burnt, extent of damage etc...? | ||||
|
|9(2)a | ||||
|
Why did the fire-setting occur (motivation)? Possibly because .... | ||||
|
Any further data? | ||||
|
■ | ||||
|
Name of person forwarding referral |
Phone contact | |||
|
Alex Maehe |
|9(2)£ | |||
|
Title if appropriate |
REGION - indicate closest area | |||
|
Deputy Principal |
| |||
|
3. New Plymouth/Napier/ Palmerston Nth / Wgtn | ||||
| ||||
Please forward by e-mail to FAIP@FireandEmergency.nz
|
From: |
Alex Maehe |
|
To: |
LeCeve, Manu |
|
Subject: |
Re: FAIP referral |
|
Date: |
Monday, 9 November 2020 9:39:16 am |
|
Attachments: |
imaQeOQ3.Dna |
Kia ora Manu
a
Thank you for your update and support of
Nga inihi
On Sun, Nov 8, 2020 at 11:45 AM LeCeve, Manu <Manu.LeCeve@fireandemergency .nz> wrote:
Hi Alex,
My name is Manu LeCeve. I am a FAIP practitioner for FENZ.
ia
Thank you for the referral, If you have any questions please call me directly.
Manu LeCeve
Senior FireFighter, FAIP Practitioner. Type 4 Bronto Trainer.
Avalon Fire Station - Red watch
M:
9(2)a
P: 9(2)(a)
manu.leceve@fireandemergency.nz
Notice: This email and any attachments may contain information that may be subject to an obligation of confidence or the subject of legal privilege.
If you received it in error:
1. Please let us know immediately by return email and then delete the email and your reply.
2. You must not use, copy or disclose any of the information contained in this email.
There is no warranty that this email is error or virus free.
If this is a private communication, it does not represent the views of the organisation.
-
Alex Maehe
Deputy Principal
NAENAE COLLEGE
910 High Street, Private Box 31-171, Lower Hutt, New Zealand
Phone No: 04 567 7175
Extension internal-only 549
' 2)a
Moblie:
This email message is intended solely for the person or entity to which it is addressed. The information it contains is confidential and may be legally privileged. Any review, retransmission, dissemination or other use of this email may be unlawful. If you are not the intended recipient, please notify us immediately and destroy the email from all sources.
This email was sent and protected by SmartGate™
From: Helen Hepburn
To: Law, Stuart
Cc: Kerrie Howard; Alex Maehe
Subject: School lift
Date: Monday, 14 December 2020 3:52:55 pm
Hi Stuart,
I have heard back from Ian Rattray - the lift shaft is fire rated and lift complies with all fire regulations
Thanks
Helen Hepburn Business Manager Naenae College LOWER HUTT
Ph: 04 5677175 Extn 821
' 2)a
www naenae-college school nz
I
This email was sent and protected by SmartGate™
|
From: |
Alex Maehe |
|
To: |
Thompson, Peter; Law, Stuart; Helen Hepburn |
|
Subject: |
Draft Update of Evacuation Plan |
|
Date: |
Wednesday, 7 April 2021 11:36:14 am |
|
Attachments: |
210704DraftScan.pdf |
Kia ora Peter and Stewart
Please find a draft update of Evacuation Plan attached.
Appreciate any feedback and comments.
Nga mihi
-
Alex Maehe
Deputy Principal
NAENAE COLLEGE
910 High Street, Private Box 31-171, Lower Hutt, New Zealand
Phone No: 04 567 7175
Extension internal-only 549
' 2)a
Moblie:
This email message is intended solely for the person or entity to which it is addressed. The information it contains is confidential and may be legally privileged. Any review, retransmission, dissemination or other use of this email may be unlawful. If you are not the intended recipient, please notify us immediately and destroy the email from all sources.
This email was sent and protected by SmartGate™
MANAGING EMERGENCIES AND TRAUMATIC INCIDENTS
In the event of an emergency or traumatic incident, the college will respond in an immediate and planned way. Plans and procedures are in place and communicated to all to ensure the response is efficient and effective. Responsibilities of staff are clearly defined. The well-being and safety of students, staff and visitors is our greatest priority.
Emergency - Natural disaster or crises with widespread physical effects in the community Traumatic Incident - Relating to individuals or small groups, violent and/or unexpected death, threatened death and/or injury, emotional consequences of natural disasters, acts of war, man-made/industrial disasters, pandemics
1. The Board's expectation of the BOT regarding emergencies and traumatic incidents are:
1.1. To ensure that all possible is done to identify risks to human life and property and to eliminate these risks where practicable and where not, reducing the magnitude of their impact. This will be done by completing an Emergency Preparedness Audit annually.
1.2. That there will be a representative of the Board of Trustees on the Health and Safety Committee
1.3. To review any emergency responses and serious traumatic harm incidents1 and actions taken in regard to these.
2. The Board's Expectations of the Principal regarding emergencies and traumatic incidents are:
2.1. To ensure plans are in place for responding to emergencies (Readynet Emergency Action Plan) Responsibility: Deputy Principal
2.2. To ensure plans are in place for responding to traumatic incidents (Traumatic Incidents Plan) Responsibility: Deputy Principal
2.3. To establish a clear chain of command and identification of individual responsibilities
2.4. To manage the process for communication with parents, outside agencies and the media
2.5. To ensure plans are in place for the safety, welfare and security of children and staff, including special provision for those with special needs including students who are wheel-chair dependant
3. The Board's expectations of the Health and Safety Committee regarding emergencies and traumatic incidents are:
3.1 To develop preparedness plans
3.2 To ensure 3 fire drills and 1 earthquake drill are conducted each year
NAENAE COLLEGE
|
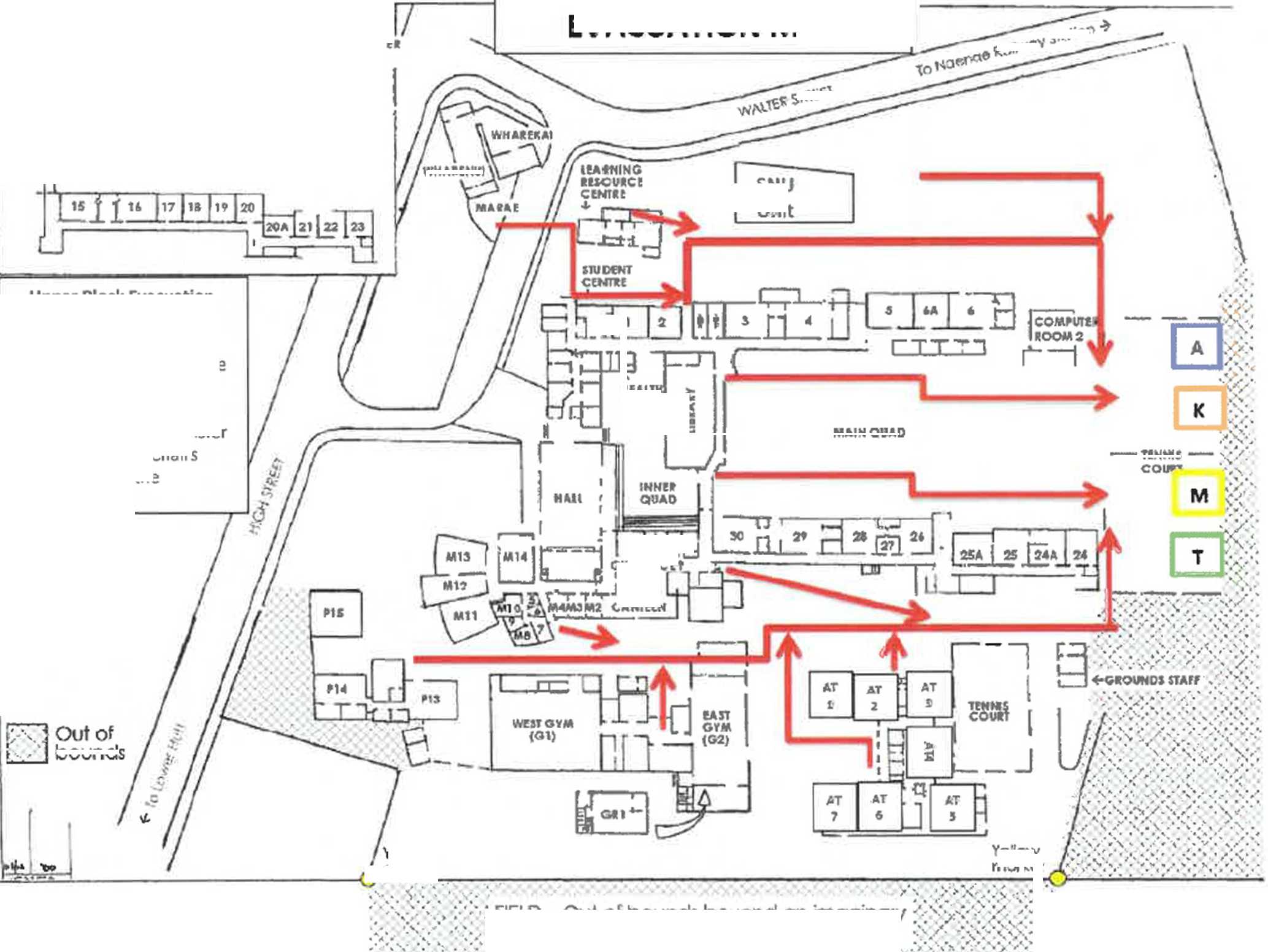
EVACUATION MAP 3 1 t FIRST FLOOR PLAN COMPUTE* i. ROOM 1 | |
|
KEY: |
MAIN QUAD M4M3M2 CANTEEN «-«ROUNDS STATE WEST GYM bounds nuDCKi CENTRE LEARNING RESOURCE CENTRE |
WHARtNUI
SNU
Unit
Upper Block Evacuation Evacuation chairs will be fitted at the top of each staircase. Students who are wheel-chair dependent, with help from trained teachers and peers, transfer to the Evacuation Chairs before going to the Assembly Point.
Yellow ^ marker
.11
HEALTH CLINIC
----TENNIS
ME GUIDA NCM
Yellow marker
: FIELD - Out cl bounds beyond an imaginary > &ne between the ye^ow markers
From:
To:
Cc:
Subject:
Date:
Attachments:
Alex Maehe
Thompson, Peter
Law, Stuart; Helen Hepburn
Re: Draft Update of Evacuation Plan
Monday, 19 April 2021 9:40:11 am
image001.png
Managing Emergencies and Traumatic Events Policy(Draft-Evac Chairs).docx
BUILDING EVACUATION ASSISTANCE REGISTERNNC.docx
Kia ora Peter
Have updated as attached (Highlighted) and added an evac register for further comment. CCd also Bee Laing (Learning Centre) for her input re hearing impairment support.
Comments and suggestions welcome.
On Mon, Apr 19, 2021 at 9:03 AM Alex Maehe < mea@naenae-college.school.nz> wrote: Kia ora Peter
Thanks. Will update policy to suggested wording.
Ngā mihi
On Fri, Apr 9, 2021 at 9:17 AM Thompson, Peter <
Peter.Thompson@fireandemergency.nz> wrote:
Hi Alex
Have had a look through your draft and a comment regarding point 2.5 is that instead of specifically naming a special need like wheel-chair dependant, have you considered stating ‘…..including special provision for those that require specific assistance (e.g. physical, sight or hearing impaired)’
Regards
Peter Thompson
Fire Risk Management Officer
Specialist Fire Investigator
Hutt City Fire Station
37 Marsden Street
Lower Hutt 5010
![]() |
M: 9(2)a |
P9(2)(a)
peter.thompson@fireandemergency.nz
From: Alex Maehe [mailto:mea@naenae-college.school.nz]
Sent: Wednesday, 7 April 2021 11:36 AM
To: Thompson, Peter <Peter.Thompson@fireandemergency.nz>; Law, Stuart
<Stuart.Law@fireandemergency.nz>; Helen Hepburn <hrn@naenae-college.school.nz>
Subject: Draft Update of Evacuation Plan
Kia ora Peter and Stewart
Please find a draft update of Evacuation Plan attached.
Appreciate any feedback and comments.
Nga mihi
Alex Maehe
Deputy Principal
NAENAE COLLEGE
910 High Street, Private Box 31-171, Lower Hutt, New Zealand
Phone No: 04 567 7175
Extension internal-only 549
9(2)a
Moblie:
This email message is intended solely for the person or entity to which it is addressed. The information it contains is confidential and may be legally privileged. Any review, retransmission, dissemination or other use of this email may be unlawful. If you are not the intended recipient, please notify us immediately and destroy the email from all sources.
This email was sent and protected by SmartGate™
Notice: This email and any attachments may contain information that may be subject to an obligation of confidence or the subject of legal privilege.
If you received it in error:
1. Please let us know immediately by return email and then delete the email and your reply.
2. You must not use, copy or disclose any of the information contained in this email.
There is no warranty that this email is error or virus free.
If this is a private communication, it does not represent the views of the organisation.
Alex Maehe
Deputy Principal
NAENAE COLLEGE
910 High Street, Private Box 31-171, Lower Hutt, New Zealand
Phone No: 04 567 7175
Extension internal-only 549
2)a
Moblie:
This email message is intended solely for the person or entity to which it is addressed. The information it contains is confidential and may be legally privileged. Any review, retransmission, dissemination or other use of this email may be unlawful. If you are not the intended recipient, please notify us immediately and destroy the email from all sources.
Alex Maehe
Deputy Principal
NAENAE COLLEGE
910 High Street, Private Box 31-171, Lower Hutt, New Zealand
Phone No: 04 567 7175
Extension internal-only 549
ia
This email message is intended solely for the person or entity to which it is addressed. The information it contains is confidential and maybe legally privileged. Any review, retransmission, dissemination or other use of this email maybe unlawful. If you are not the intended recipient, please notify us immediately and destroy the email from all sources.
This email was sent and protected by SmartGate™
MANAGING EMERGENCIES AND TRAUMATIC INCIDENTS
In the event of an emergency or traumatic incident, the college will respond in an immediate and planned way. Plans and procedures are in place and communicated to all to ensure the response is efficient and effective. Responsibilities of staff are clearly defined. The well-being and safety of students, staff and visitors is our greatest priority.
Emergency – Natural disaster or crises with widespread physical effects in the community Traumatic Incident – Relating to individuals or small groups, violent and/or unexpected death, threatened death and/or injury, emotional consequences of natural disasters, acts of war, man-made/industrial disasters, pandemics
1. The Board's expectation of the BOT regarding emergencies and traumatic incidents are:
1.1. To ensure that all possible is done to identify risks to human life and property and to eliminate these risks where practicable and where not, reducing the magnitude of their impact. This will be done by completing an Emergency Preparedness Audit annually.
1.2. That there will be a representative of the Board of Trustees on the Health and Safety Committee
1.3. To review any emergency responses and serious traumatic harm incidents1 and actions taken in regard to these.
2. The Board's Expectations of the Principal regarding emergencies and traumatic incidents are:
2.1. To ensure plans are in place for responding to emergencies (Readynet Emergency Action Plan) Responsibility: Deputy Principal
2.2. To ensure plans are in place for responding to traumatic incidents (Traumatic Incidents Plan) Responsibility: Deputy Principal
2.3. To establish a clear chain of command and identification of individual responsibilities
2.4. To manage the process for communication with parents, outside agencies and the media
2.5. To ensure plans are in place for the safety, welfare and security of children and staff, including special provision for those that require specific assistance (e.g. physical, sight or hearing impaired).
3. The Board's expectations of the Health and Safety Committee regarding emergencies and traumatic incidents are:
3.1 To develop preparedness plans
3.2 To ensure 3 fire drills and 1 earthquake drill are conducted each year
3.3 To maintain adequate civil defence equipment and emergency supplies (for 50 – 80 people). Supplies to be checked, and where necessary renewed annually.
3.4 To ensure an annual update of the register listing staff skills and availability in a time of emergency.
4. The Board's expectations of Teachers and Support Staff regarding emergencies and traumatic incidents are:
4.1 That after ensuring personal safety their primary duty will be the care of students.
4.2 To remain at school for a minimum of 2 hours and after that to advise the Senior Management when they are leaving the school premises.
4.3 To be familiar with the school's Readynet Emergency Action Plan and Traumatic Incident Plan.
4.4 That at the beginning of the year, a Classroom Hazards Checklist will be completed and returned to the Health and Safety Committee.
Managing emergencies and traumatic incidents – MOE 2010
Naenae College Readynet Emergency Action Plan
Naenae College Traumatic Incident Plan
Naenae College Family Guide – what parents need to know in times of emergency (2012)
Naenae College Guidance & Communication Handbook – (2012 Page 49)
Naenae College Emergency Preparedness Audit – including dates of drills
• Ministry of Civil Defence and Emergency Management www.civildefence.govt.nz
• Ministry of Education, Special Education Traumatic Team – Responsible for providing traumatic incident training and services. www.minedu.govt.nz (keyword: traumatic incident)
• Readynet: www.readynetinfo.co.nz in conjunction with the Hutt City Council
Civil Defence Emergency Management Act 2002
Education Act 1989
Fire Safety and Evacuation of Buildings Regulations 2006
All aspects of emergency and traumatic incident preparedness meet the requirements of this policy. Drills run smoothly. Systems ensure that hazards are eliminated or reduced. Regular reviews show procedures for response meet the present needs.
Adopted: October 2012
Reviewed October 2017
Next Review date: October 2019
Note: This policy is required to be reviewed annually
Inserted in Evacuation Map
Physical: Evacuation chairs will be fitted at the top of each staircase. Students who are wheelchair dependent, with help from the teacher and peers, transfer to the Evacuation Chairs before going to the Evacuation Assembly Point (EAP).
Sight impaired: Students with sight impairment will be escorted safely to the EAP
Hearing impaired: Students with hearing impairment will be assisted by teachers trained to communicate in sign language and other means to alert an evacuation
FOR: Naenae College, 910 High Street, Lower Hutt
This Register to be located at the: Fire Evacuation Board.
• Details of all persons who normally occupy the building and who may require assistance in the event of an evacuation must be entered on this form.
• Do not enter details of visitors to the building (e.g., visiting staff and students) unless specifically requested to do so.
• This Assistance Register shall be continuously updated, noting any changes to details of persons requiring assistance.
• In the event of an evacuation, nominated staff will assist any persons with a disability whose names are not on this Assistance Register.
|
Date |
Name of person requiring assistance |
Reason for needing assistance |
Person to provide assistance |
Normal Location |
Mobile Phone Number |
*Reg: 111-Text Y/N |
Person responsible for managing this register ........................ (Building
Warden).
Mobile Phone No……………………
Dated:
*Note: If you are deaf, hearing or speech-impaired, you can register for the 111 TXT service: www.police.govt.nz/111-txt.
|
From: |
Nic Richards |
|
To: |
Wright, Ian |
|
Subject: |
Re: malicious false alarms |
|
Date: |
Wednesday, 16 March 2022 5:46:39 pm |
Kia ora Ian
9(2)(a)
Quite an unusual series of alarms this afternoon. The
set off the alarm three
9(2)a
times in quick succession. I have contacted the police and home.
. I will follow up with you once the dust settles. Thank you and the team for attending, we deeply appreciate the work the service is committed to in our community.
Nga mihi
Nic
On Wed, 16 Mar 2022 at 16:11, Wright, Ian <Ian.Wright@fireandemergency.nz> wrote:
9(2)(a)
Hi Nic, thank you very much for all your help today with the student/s
As discussed, if you have a verified name and contact details we would value our FAIP
9(2)(a)
Fire Awareness and Intervention Programme) people
Please advise and I will put our team in touch direct with you.
Kind regards
Ian
Ian Wright
Senior Station Officer
Blue Watch Avalon
Notice: This email and any attachments may contain information that may be subject to an obligation of confidence or the subject of legal privilege.
If you received it in error:
1. Please let us know immediately by return email and then delete the email and your reply.
2. You must not use, copy or disclose any of the information contained in this email.
There is no warranty that this email is error or virus free.
If this is a private communication, it does not represent the views of the organisation.
Nic Richards
Principal
NAENAE COLLEGE
910 High Street, Private Box 31-171, Lower Hutt, New Zealand T: 64-4-920-1518
F: 64-4-567 3009
Instagram: nnc_nz
Instagram pages: nnc_nz and naenaecollege_careers
Facebook Pages: nncolsport and naenae college
Youtube: Naenae College NZ Official
Website: https://www.naenae-college.schoQl.nz/
This email message is intended solely for the person or entity to which it is addressed. The information it contains is confidential and may be legally privileged. Any review, retransmission, dissemination or other use of this email may be unlawful. If you are not the intended recipient, please notify us immediately and destroy the email from all sources.
From:
To:
Subject:
Date:
Attachments:
Nic Richards
FAIP
Fwd: Message from KM_C308-C308R1784
Thursday, 31 March 2022 3:29:40 pm
SKM_C308-C322033115390.pdf
9(2)(a)
Attached are
referral forms
I (a)
----------Forwarded message ---------
From: <copier@nnc.school.nz>
Date: Thu, 31 Mar 2022 at 15:20
Subject: Message from KM_C308-C308R1784
To: <rs@naenae-college.school.nz>
Nic Richards
Principal
NAENAE COLLEGE
910 High Street, Private Box 31-171, Lower Hutt, New Zealand
T: 64-4-920-1518
F: 64-4-567 3009
Instagram: nnc_nz
Instagram pages: nnc_nz and naenaecollege_careers
Facebook Pages: nncolsport and naenae college
Youtube: Naenae College NZ Official
Website: https://www.naenae-college.school.nz/
This email message is intended solely for the person or entity to which it is addressed. The information it contains is confidential and may be legally privileged. Any review, retransmission, dissemination or other use of this email may be unlawful. If you are not the intended recipient, please notify us immediately and destroy the email from all sources.
FIRE
EMERGENCY
UMUM’tiw»nn
MfWUMAMO
Date:
Child's Name:
Age
D.O.B
Gender
Parent's Name: (or caregiver) Address:
![]() |
Time: Ethnicity Prior incidents attended by Fire and Emergency NZ |
|
ia Residence: Home I | |
ia
(2)a
Phone: Date fire-setting occurred? Where did the fire-setting occur?
Home:
School:
Other: (describe)
Home alone?
|
Details of the fire: What was burnt, extent of damage etc...? |
![]() |
|
Fire #?___________________________________________________________ Why did the fire-setting occur (motivation)? Possibly because .... |
![]() |
Any further data?
Name of person forwarding referral
Phone contact
9(2)a
Title if appropriate
€\ss<sV—A ?^
REGION - indicate closest area
1. Northland / Auckland
2. Hamilton / Tauranga / Gisborne / Taupo
•4- New Plymouth/Napier/ Palmerston Nth / Wgtn
4. Nelson / Christchurch / Timaru / West Coast
5. Oamaru / Dunedin / Queenstown/lnvercargill
![]() |
FIRE EMERGENCY I |
nrwzuutto
Date:
Child's
Name:
Age
D.O.B
Gender
Parent's
Name: (or caregiver) Address:
![]() |
la |
|
P(2)a | |
Residence:
Home I
Time:
Ethnicity
Prior incidents attended by Fire and Emergency jjZ
a
Phone: Date fire-setting occurred?
la
Home alone?
'(2)a
Where did the fire-setting occur?
Home:
School:
Other: (describe)
Ra
Details of thi
Fire #?___________________________________________________________
Why did the fire-setting occur (motivation)? Possibly because ....
Any further data?
Name of person forwarding referral
Title if appropriate
Phone contact
![]() |
|
REGION - indicate closest area |
1.
2.
3.
4.
5.
Northland / Auckland
Hamilton / Tauranga / Gisborne / Taupo __ New Plymouth/Napier/ Palmerston Nth /(Wgtn
Nelson / Christchurch / Timaru / West Coast Oamaru / Dunedin / Queenstown/lnvercargill
|
Nic Richards Carline, Paul | ||||||
|
Confirmed for Monday, Paul. We will have an SLT member to support each session.
Fire service education
Monday 4th April - Hall
T
|
Pericc |
Tinning |
Classes |
Teachers |
|
Period 2 |
11:25am - 11:55am |
9AJN (17) 9KPUT(18) 9MANC (16) |
SH PY FRK |
|
Period 2 |
12:05pm - 12:35pm |
9ALBE (19) 9AFYC (19) 9NLJ (11) |
LBE FYC NLJ |
|
Pericc 3 |
1:45pm - 2:15pm |
9KTUA (21) 9TIAN (20) |
BL EL |
|
Pericc 3 |
2:25pm - 2:55pm |
9MLG (17) 9TSD(1S) 9MKMS (18) |
XGA SC MR |
On Thu, 31 Mar 2022 at 12:40, Nic Richards <rs@naenae-college.school.nz> wrote: Paul, Monday is looking good. It would be periods 2 (11.15 am) and 3 (1.30 pm). Four groups. I will confirm the details.
Nic
On Thu, 31 Mar 2022 at 12:35, Nic Richards <rs@naenae-college.school.nz> wrote: Thanks, Paul. This is something that we can consider as part of the renovations. The design aspects do not make sense but those decisions are historical.
Kind regards
Nic
On Thu, 31 Mar 2022 at 09:59, Carline, Paul <Paul.Carline@fireandemergency.nz> wrote:
Hi Nic, nice to meet you yesterday. I spoke with a risk reduction advisor Stu Law, he
9(2)(a)
said that if there is
the manual points can
be relocated where they are under the direct supervision of staff. This could be a
long term solution to your school’s alarm issues.
I look forward to working with your students. Don’t forget those Fire Awareness Intervention Cases as well. Have attached a DOC file regarding referrals.
Nga mihi
Fire Awareness Practitioner and Fire Wise Ambassador.
Alcohol Impairment Educator.
Wellington District, Te Upoko.
' 2)a
Paul.Carline@fireandemergency.nz
Nga uara - Values | Kia Tika - We do the Right Thing | Manaakitanga - We serve and Support | Whanaungatanga - We are better together | Auahatanga - We Strive to Improve
From: Nic Richards <rs@naenae-college.school.nz>
Sent: Wednesday, 30 March 2022 3:34 pm
To: Carline, Paul <Paul.Carline@fireandemergency.nz>
Subject: Fire alarms
Kia ora Paul
Thanks for coming in today. I will talk with the team and hopefully, we can arrange something on Monday or Tuesday.
Ngā mihi
Nic
-
Nic Richards
Principal
NAENAE COLLEGE
u
910 High Street, Private Box 31-171, Lower Hutt, New Zealand
T: 64-4-920-1518
F: 64-4-567 3009
Instagram: nnc_nz
Instagram pages: nnc_nz and naenaecollege_careers
Facebook Pages: nncolsport and naenae college
Youtube: Naenae College NZ Official
Website: https://www naenae-college.school.nz/
This email message is intended solely for the person or entity to which it is addressed. The information it contains is confidential and may be legally privileged. Any review, retransmission, dissemination or other use of this email may be unlawful. If you are not the intended recipient, please notify us immediately and destroy the email from all sources.
Notice: This email and any attachments may contain information that may be subject to an obligation of confidence or the subject of legal privilege.
If you received it in error:
1. Please let us know immediately by return email and then delete the email and your reply.
2. You must not use, copy or disclose any of the information contained in this email.
There is no warranty that this email is error or virus free.
If this is a private communication, it does not represent the views of the organisation.
Nic Richards
Principal
NAENAE COLLEGE
B]
910 High Street, Private Box 31-171, Lower Hutt, New Zealand
T: 64-4-920-1518
F: 64-4-567 3009
Instagram: nnc_nz
Instagram pages: nnc_nz and naenaecollege_careers
Facebook Pages: nncolsport and naenae college
Youtube: Naenae College NZ Official
Website: https://www.naenae-college.schoQl.nz/
This email message is intended solely for the person or entity to which it is addressed. The information it contains is confidential and may be legally privileged. Any review, retransmission, dissemination or other use of this email may be unlawful. If you are not the intended recipient, please notify us immediately and destroy the email from all sources.
Nic Richards
Principal
NAENAE COLLEGE
910 High Street, Private Box 31-171, Lower Hutt, New Zealand
T: 64-4-920-1518
F: 64-4-567 3009
Instagram: nnc_nz
Instagram pages: nnc_nz and naenaecollege_careers
Facebook Pages: nncolsport and naenae college
Youtube: Naenae College NZ Official
Webs/te: https://www.naenae-GQllege.SGhQQl.nz/
This email message is intended solely for the person or entity to which it is addressed. The information it contains is confidential and may be legally privileged. Any review, retransmission, dissemination or other use of this email may be unlawful. If you are not the intended recipient, please notify us immediately and destroy the email from all sources.
Nic Richards
Principal
NAENAE COLLEGE
910 High Street, Private Box 31-171, Lower Hutt, New Zealand T: 64-4-920-1518
F: 64-4-567 3009
Instagram: nnc_nz
Instagram pages: nnc_nz and naenaecollege_careers
Facebook Pages: nncolsport and naenae college
Youtube: Naenae College NZ Official
Website: https://www.naenae-college.school.nz/
This email message is intended solely for the person or entity to which it is addressed. The information it contains is confidential and may be legally privileged. Any review, retransmission, dissemination or other use of this email may be unlawful. If you are not the intended recipient, please notify us immediately and destroy the email from all sources.
From:
To:
Subject:
Date:
Attachments:
Fiona Crawford
FAIP
Referral form attached.
Tuesday, 26 April 2022 3:35:51 pm
FAIP Referral Form
.docx
Many thanks Fiona
Fiona Crawford (she/her)
Assistant Principal
NAENAE COLLEGE
910 High Street, Private Box 31-171, Lower Hutt, New Zealand
Phone No: 04 567 7175 Ext: 837
Instagram pages: nnc_nz and naenaecollege_careers
Facebook Pages: nncolsport and naenae college
Youtube: Naenae College NZ Official
© FIRE ri«rnnriinv
|
Date: |
Time: m | ||||
|
Child's |
Ethnicity: |^ | ||||
|
Name: | |||||
|
Residence: |
Prior incidents attended by | ||||
|
Age |
Home |
1 1 |
Fire and Emergency NZ | ||
|
Institution^^™ | |||||
|
Gender |
-- | ||||
|
Parent's | |||||
|
Name: |
1■ | ||||
|
(or caregiver) | |||||
|
Address: | |||||
|
Phone: | |||||
|
Date |
Home alone? | ||||
|
fire-setting | |||||
|
occurred? | |||||
|
Where did the fire-setting occur? | |||||
|
Home: | |||||
|
School: | |||||
|
Other: (describe) | |||||
|
Details of the fire: What was burnt, extent of damage etc...? | |||||
|
Why did the fire-setting occur (motivation)? Possibly because .... | |||||
|
9(2)a | |||||
|
Any further data? | |||||
|
Name of person forwarding referral |
Phone contact | ||||
|
04 567 7175 Ext: 837 | |||||
|
Fiona Crawford, AP Naenae College | |||||
|
Title if appropriate |
REGION |
- indicate closest area | |||
| ||
|
Please forward by e-mail to FAIP@FireandEmergency.nz |
|
From: |
Fiona Crawford |
|
To: Cc: |
Carline, Paul Stewart, Sue; Soal, Philip; Hughes, Gareth; Abel, Matthew |
|
Subject: |
Re: Student fire referral |
|
Date: |
Tuesday, 26 April 2022 3:35:38 pm |
|
Attachments: |
image003.png |
Great, done.
Many thanks!
Fiona
On Tue, Apr 26, 2022 at 3:22 PM Carline, Paul <Paul.Carline@fireandemergency.nz> wrote:
Hi Fiona, great to hear from you. I would be very keen to work with
3 (2)a
I have
enclosed a FAIP referral form. If you could fill it out and send it through to the address
on the form it should come to me.
I look forward to working with her.
Nga mihi
Fire Awareness Practitioner and Fire Wise Ambassador.
Alcohol Impairment Educator.
Trentham Fire Station.
545 Fergusson Drive, Trentham.
Upper Hutt 5018.
Wellington District, Te Upoko.
FIRE GETS REAL
![]() |
FIRE, EMERGENCY J |
'(2)a
Iftw rtALAM
Paul.Carline@fireandemerqency.nz
Nga uara - Values | Kia Tika - We do the Right Thing | Manaakitanga - We sen e and Support | Whanaungatanga - We are better together | Auahatanga - We Strive to Improve
From: Fiona Crawford <df@iiaaiae^k^dM^ Sent: Tuesday, 26 April 2022 3:10 pm
To: Car line, Paul <Paul.Carline@fireandemergency.nz>: Tim Davies-Colley
ia
<dct@naenae-college.scliool.nz>; Justin Wilson Subject: Student fire referral
Kia ora Paul,
We would like to book in an educational one on one with you around fire risks (like what you did with our other student). It may be possible to do this at HVAC, so I have cc'ed in Tim and Justin fiom there. But, I don't have any paper work for the referral. Do you have an electronic copy?
Many thanks
Fiona
Fiona Crawford (she/her)
Assistant Principal
NAENAE COLLEGE
910 High Street, Private Box 31-171, Lower Hutt, New Zealand
Phone No: 04 567 7175 Ext: 837
Instagram pages: nnc_nz and naenaecollege_careers
Facebook Pages: nncolsport and naenae college
Youtube: Naenae College NZ Official
Notice: This email and any attachments may contain information that may be subject to an obligation of confidence or the subject of legal privilege.
If you received it in error:
1. Please let us know immediately by return email and then delete the email and your reply.
2. You must not use, copy or disclose any of the information contained in this email.
There is no warranty that this email is error or virus free.
If this is a private communication, it does not represent the views of the organisation.
Fiona Crawford (she/her)
Assistant Principal
NAENAE COLLEGE
910 High Street, Private Box 31-171, Lower Hutt, New Zealand
Phone No: 04 567 7175 Ext: 837
Instagram pages: nnc_nz and naenaecollege_careers
Facebook Pages: nncolsport and naenae college
Youtube: Naenae College NZ Official
|
From: |
FAIR |
|
To: |
FAIP Region 3 |
|
Subject: |
FW: Referral form attached. |
|
Date: |
Wednesday, 27 April 2022 8:27:59 am |
|
Attachments: |
FAIP Referral Form docx imaoeooi.pna |
Hi There
Please find attached an FAIP referral for your Region. Please acknowledge receipt.
Regards
Jackie Watson
Business Services Co-ordinator
Kairuruku Ratonga Pakihi
Te Hiku (Region 1) Headquarters, 2 Poynton Terrace, Newton, Auckland 1010
PO Box 68-444, Victoria Street West, Auckland 1142
![]() |
|
NSW ZEALAND |
|9i
'Wa
DDI:
Mobile:
Email:
iackie.watson@fireandemerqency.nz
From: Fiona Crawford <cdf@naenae-college.school.nz>
Sent: Tuesday, 26 April 2022 3:35 pm
To: FAIP <FAIP@fireandemergency.nz>
Subject: Referral form attached.
Many thanks
Fiona
Fiona Crawford (she/her)
Assistant Principal
NAENAE COLLEGE
910 High Street, Private Box 31-171, Lower Hutt, New Zealand
Phone No: 04 567 7175 Ext: 837
Instagram pages: nnc_nz and naenaecollege_careers
Facebook Pages: nncolsport and naenae college
Youtube: Naenae College NZ Official
© FIRE "^^^ ri«rnnriinv
|
Date: B^H |
I ime: | ||||
|
Child's |
Ethnicity: | ||||
|
Name: ĒI@E^^H | |||||
|
Residence: |
Prior incidents attended by | ||||
|
Age IHM |
Home |
■9( |
2)a 1 |
Fire and Emergency NZ | |
|
In^titi itinn ■ | |||||
|
D.O.B 5WW | |||||
|
Gender | |||||
|
Parent's ĒI@E^^H | |||||
|
^^^^^^^| | |||||
|
(or caregiver) ^^^^^ | |||||
|
Address: ^^^^^ | |||||
|
Phone: | |||||
|
Date ^H^^^M |
Home alone? | ||||
|
fire-setting occurred? | |||||
|
Where did the fire-setting occur? Home: School: Other: (describe) |
9(2)a | ||||
|
Details of the fire: What was burnt, extent of damage etc...? | |||||
|
Why did the fire-setting occur (motivation)? Possibly because .... | |||||
|
|9(2)a | |||||
|
Any further data? | |||||
|
Name of person forwarding referral Fiona Crawford, AP Naenae College |
Phone contact 04 567 7175 Ext: 837 | ||||
|
Title if appropriate |
REGION |
- indicate closest area | |||
| ||
|
Please forward by e-mail to FAIP@FireandEmergency.nz |
From:
To:
Subject:
Date:
Nic Richards
Carline, Paul
Principal out of office Re: FAIP Cases, Naenae College.
Wednesday, 4 May 2022 11:02:41 am
Kia ora
This account is now closed as the Principal is on sabbatical for Term 2. To contact the Acting Principal please email Alex Maehe on mea@naenae-college.school nz or to contact Naenae College administration please email admin@naenae-college.school.nz.
Ngā mihi
Naenae College
*Nic Richards*
*Principal*
*NAENAE COLLEGE*
910 High Street, Private Box 31-171, Lower Hutt, New Zealand
T: 64-4-920-1518
F: 64-4-567 3009
Instagram: nnc_nz
Instagram pages: nnc_nz and naenaecollege_careers
Facebook Pages: nncolsport and naenae college
Youtube: Naenae College NZ Official
Website: https://www.naenae-college.school.nz/
*This email message is intended solely for the person or entity to which it is addressed. The information it contains is confidential and may be legally privileged. Any review, retransmission, dissemination or other use of this email may be unlawful. If you are not the intended recipient, please notify us immediately and destroy the email from all sources. *
From:
To:
Cc:
Subject:
Date:
Attachments:
Fiona Crawford
Carline, Paul
Sarah Calcutt; Allan, Mirren; Soal, Philip; Hughes, Gareth
Re: 9(2)(a)| sessions
Tuesday, 17 May 2022 1:08:48 pm
image004.png
image007.png
Thanks Paul,
This is the plan at the moment. We can start at 9am in the hall, so you are welcome to arrive a little later than 8:45 if you like.
Thanks again
Fiona
On Tue, May 17, 2022 at 9:17 AM Carline, Paul <Paul.Carline@fireandemergency.nz> wrote:
Hi Fiona, groups of 60 will be fine.
You are locked in for Friday the 27th May, 0845 start.
Nga mihi
Fire Awareness Practitioner and Fire Wise Ambassador.
Alcohol Impairment Educator.
Trentham Fire Station.
545 Fergusson Drive, Trentham.
Upper Hutt 5018.
Wellington District, Te Upoko.
Nga uara - Values | Kia Tika - We do the Right Thing | Manaakitanga - We serve and Support | Whanaungatanga - We are better together | Auahatanga - We Strive to Improve
From: Fiona Crawford <cdf@naenae-college.school.nz>
Sent: Tuesday, 17 May 2022 9:00 am
To: Carline, Paul <Paul.Carline@fireandemergency.nz>; Sarah Calcutt <cts@naenae-
college.school.nz>
Cc: Allan, Mirren <Mirren.Allan@fireandemergency.nz>; Soal, Philip
9(2)(a
sessions
Kia ora ano Paul,
I've worked on the plan, and its a bit trickier to get less than 50 and deliver the programme over 3 sessions. We do have a number of absences each day, but 2 of the groups would be closer to 60. Is this okay?
Thanks
Fiona
On Mon, May 16, 2022 at 4:59 PM Fiona Crawford <cdf@naenae-college.school.nz> wrote:
Thanks Paul,
Can we lock in Friday 27th 8:45 till 10:50. I'll confirm the arrangements, but we would have 3 sessions of around 50 students with a small transition time between.
I have struggled to connect with|j||^ due to absences recently, but I will ensure she has! letter ready that day. I have cc'ed in Sarah the Acting AP for the Senior School and I'm sure she can suppoiH^a getting hers finished also.
Many thanks
Fiona
On Mon, May 16, 2022 at 10:38 AM Carline, Paul
<Paul.Carline@fireandemergency.nz> wrote:
Hi Fiona can do any day from Monday the 23rd May till Friday the 27th May,
excluding the Tuesday, 24th May.
ia
•a
^
and
|
I am still keen to catch uo with |
![]() |
Can this be done on the day that you choose for me to come in to talk to the
9(2)(a)
please.
Nga mihi
File Awareness Practitioner and File Wise Ambassador.
Alcohol Impairment Educator.
Trentham Fire Station.
545 Fergusson Drive, Trentham.
Upper Hutt 5018.
Wellington District, Te Upoko.
![]() |
' 2)a |
Nga uara - Values | Kia Tika - We do the Right Thing | Manaakitanga - We serve and Support | Whanaungatanga - We are better together | Auahatanga - We Strive to Improve
From: Fiona Crawford <cdf@naenae-college.school.nz>
Sent: Monday, 16 May 2022 10:30 am
To: Carline, Paul <Paul.Carline@fireandemergency.nz>
i (2)(a
sessions
Sorry Paul, any times next week that might work?
On Sun, May 15, 2022 at 9:35 PM Fiona Crawford <cdf@naenae-college.school.nz> wrote:
Hi, definitely not tomorrow. I'll check calendar in the morning and get back to you.
Thanks
On Sun, 15 May 2022, 19:46 Carline, Paul, <Paul.Carline@fireandemergency.nz> wrote:
Hi Fiona could do this Monday, tomorrow or Friday. Let me know what suits.
Thanks Paul Carline
Get Outlook for Android
From: Fiona Crawford <cdf@naenae-college.school.nz> Sent: Sunday, May 15, 2022 5:28:00 PM
To: Carline, Paul <Paul.Carline@fireandemergency.nz>
' 2)(a
Subject:
sessions
Kia ora Paul,
9(2)(a
We would like to organise sessions for the
like you did with the
'2)(a'
if
possible. We only have 165, so assuming there are some absences, we would likely only need 3 sessions. Half an hour right? Would you be happy to go back to back with 10 mins in between? It would mean we could do them from 9am till 10:50 any day you're available (excluding Thursdays).
Many thanks
Fiona
Fiona Crawford (she/her)
Assistant Principal
NAENAE COLLEGE
910 High Street, Private Box 31-171, Lower Hutt, New Zealand
Phone No: 04 567 7175 Ext: 837
Instagram pages: nnc_nz and naenaecollege_careers
Facebook Pages: nncolsport and naenae college
Youtube: Naenae College NZ Official
Notice: This email and any attachments may contain information that may be subject to an obligation of confidence or the subject of legal privilege.
If you received it in error:
1. Please let us know immediately by return email and then delete the email and your reply.
2. You must not use, copy or disclose any of the information contained in this email.
There is no warranty that this email is error or virus free.
If this is a private communication, it does not represent the views of the organisation.
Fiona Crawford (she/her)
Assistant Principal
NAENAE COLLEGE
910 High Street, Private Box 31-171, Lower Hutt, New Zealand
Phone No: 04 567 7175 Ext: 837
Instagram pages: nnc_nz and naenaecollege_careers
Facebook Pages: nncolsport and naenae college
Youtube: Naenae College NZ Official
Notice: This email and any attachments may contain information that may be subject to an obligation of confidence or the subject of legal privilege.
If you received it in error:
1. Please let us know immediately by return email and then delete the email and your reply.
2. You must not use, copy or disclose any of the information contained in this email.
There is no warranty that this email is error or virus free.
If this is a private communication, it does not represent the views of the organisation.
Fiona Crawford (she/her)
Assistant Principal
NAENAE COLLEGE
910 High Street, Private Box 31-171, Lower Hutt, New Zealand
Phone No: 04 567 7175 Ext: 837
Instagram pages: nnc_nz and naenaecollege_careers
Facebook Pages: nncolsport and naenae college
Youtube: Naenae College NZ Official
Fiona Crawford (she/her)
Assistant Principal
NAENAE COLLEGE
910 High Street, Private Box 31-171, Lower Hutt, New Zealand
Phone No: 04 567 7175 Ext: 837
Instagram pages: nnc_nz and naenaecollege_careers
Facebook Pages: nncolsport and naenae college
Youtube: Naenae College NZ Official
Notice: This email and any attachments may contain information that may be subject to an obligation of confidence or the subject of legal privilege.
If you received it in error:
1. Please let us know immediately by return email and then delete the email and your reply.
2. You must not use, copy or disclose any of the information contained in this email.
There is no warranty that this email is error or virus free.
If this is a private communication, it does not represent the views of the organisation.
Fiona Crawford (she/her)
Assistant Principal
NAENAE COLLEGE
910 High Street, Private Box 31-171, Lower Hutt, New Zealand
Phone No: 04 567 7175 Ext: 837
Instagram pages: nnc_nz and naenaecollege_careers
Facebook Pages: nncolsport and naenae college
Youtube: Naenae College NZ Official
From: To: Subject: Date:
Carline, Paul
Re: visit
Friday, 27 May 2022 8:55:56 pm
Hi Paul
No class is fine with me hahaha Friday 10th after school would be gr eat for me and
_________<Paul.Carline@firea wrote:
Hi]^^| just had a talk to Al Collett at Avalon because of the covid situation a class visit cannot occur. Apologies. Either the 9th or 10th of June would be ideal for us.
You could come down straight after school to Avalon Station. Sorry but you would have to wear facemasks.
a
Just bring yourself anc
2)a
From:
Sent: Friday, May 27, 2022 8:27:35 PM
To: Carline, Paul <Paul.Carline(a)fireandemer£encv.nz>
Subject: Re: visit
OMG thx so much for your quick response I am so excited. Me me me me me not sure about my class or friends just yet. Will have a quick think on that one. Yeah thanks so much
On Fri. 27 May 2022, 20:22 Carline, Paul, <Pauld2arlin£#fii£aild£nie^ wrote:
ia
Hr
it would be gr eat to host you at Avalon Station. Would you like your class
to come as well or just you and your friends.
I will ask Brent Pritchard who is the officer at Avalon Station for some suitable dates.
Thanks Paul Carline.
<)a
From:
Sent: Friday, May 27, 2022 7:39:04 PM
To: Carline, Paul <Paul.Carline(g>fireandemergency.nz>
Subject: visit
Hi Paul
Thank you for your- work card. I really would like to one day soon come and have a look at the fir e station. I look forward to hearing back from you when you think this might be possible. I really enjoyed your visit to NNC.
ia
Notice: This email and any attachments may contain information that may be subject to an obligation of confidence or the subject of legal privilege.
If you received it in error:
1. Please let us know immediately by return email and then delete the email and your reply.
2. You must not use, copy or disclose any of the information contained in this email.
There is no warranty that this email is error or virus free.
If this is a private communication, it does not represent the views of the organisation.
|
H |
B |
B |
B |
B |
B |
Notice: This email and any attachments may contain information that may be subject to an obligation of confidence or the subject of legal privilege.
If you received it in error:
1. Please let us know immediately by return email and then delete the email and your reply.
2. You must not use, copy or disclose any of the information contained in this email.
There is no warranty that this email is error or virus free.
If this is a private communication, it does not represent the views of the organisation.
From:
To:
Subject:
Date:
Attachments:
' 2)a
Pritchard, Brent
Re: Avalon Fire Stn Visit
Thursday, 2 June 2022 2:37:50 pm
image001.png
image001.png
Hi there thanks for emailing me. Paul mentioned after school me and
9(2)a
could come
over. We won't be allowed to come during school time. If this doesn't suit another time out
side school hours would be great.
Thanks lots
9(2)a
On Thu, 2 Jun 2022, 14:30 Pritchard, Brent, <Brent.Pritchard@fireandemergency.nz> wrote:
Hi
9(2)a
I’ve been given your details to organise a time to come for a visit at Avalon Fire Station. We are available on the 10th June (Friday). Would 9am work for you?
Regards Brent.
Brent Pritchard
brent.pritchard@fireandemergency.nz
Notice: This email and any attachments may contain information that may be subject to an obligation of confidence or the subject of legal privilege.
If you received it in error:
1. Please let us know immediately by return email and then delete the email and your reply.
2. You must not use, copy or disclose any of the information contained in this email.
There is no warranty that this email is error or virus free.
If this is a private communication, it does not represent the views of the organisation.
From:
To:
Subject:
Date:
Attachments:
' 2)a
Pritchard, Brent
Re: Avalon Fire Stn Visit
Wednesday, 8 June 2022 5:12:49 pm
image001.png
image001.png
' 2)a
Very sorry for the late reply yes me and at 3.10
will be there just after 3pm school finishes
Thank you
9(2)a
On Sat, 4 Jun 2022, 18:22 Pritchard, Brent, <Brent.Pritchard@fireandemergency.nz> wrote:
9(2)a
Hi
If you could make it between 3 and 4 pm Friday?
Regards Brent.
Brent Pritchard
brent.pritchard@fireandemergency.nz
2)a
From:
-college.school.nz>
Sent: Thursday, 2 June 2022 2:37 pm
To: Pritchard, Brent <Brent.Pritchard@fireandemergency.nz>
Subject: Re: Avalon Fire Stn Visit
Hi there thanks for emailing me. Paul mentioned after school me and
' 2)a
could come
over. We won't be allowed to come during school time. If this doesn't suit another time
out side school hours would be great.
Thanks lots
' 2)a
On Thu, 2 Jun 2022, 14:30 Pritchard, Brent, <Brent.Pritchard@fireandemergency.nz> wrote:
9(2)a
Hi
I’ve been given your details to organise a time to come for a visit at Avalon Fire Station. We are available on the 10th June (Friday). Would 9am work for you?
Regards Brent.
Brent Pritchard
brent.pritchard@fireandemergency.nz

Notice: This email and any attachments may contain information that may be subject to an obligation of confidence or the subject of legal privilege.
If you received it in error:
1. Please let us know immediately by return email and then delete the email and your reply.
2. You must not use, copy or disclose any of the information contained in this email.
There is no warranty that this email is error or virus free.
If this is a private communication, it does not represent the views of the organisation.
|
H |
B |
B |
B |
B |
B |
Notice: This email and any attachments may contain information that may be subject to an obligation of confidence or the subject of legal privilege.
If you received it in error:
1. Please let us know immediately by return email and then delete the email and your reply.
2. You must not use, copy or disclose any of the information contained in this email.
There is no warranty that this email is error or virus free.
If this is a private communication, it does not represent the views of the organisation.
(2)a
From: To: Subject: Date:
Carline, Paul
Re: visit
Friday, 10 June 2022 3:21:41 pm
Hi Paul me aii(l|u9i' all ready at the station
Seanisa
2)a
On Fri, 27 May 2022, 20:55
Hi Paul
@naenae-college.school nz> wrote:
No class is fine with me hahaha Friday 10th after school would be gr eat for me and
|9(2)a
Hi
just had a talk to Al Collett at Avalon because of the covid situation a class
visit cannot occur. Apologies. Either the 9th or 10th of June would be ideal for us.
You could come down straight after school to Avalon Station. Sony but you would have to wear facemasks.
a
Just bring yourself and
From:
^)a
Sent: Friday, May 27, 2022 8:27:35 PM
To: Carline, Paul <Paul.Carline(g>fireandemergency.nz>
Subject: Re: visit
OMG thx so much for your quick response I am so excited. Me me me me me not sure
about my class or friends just yet. Will have a quick think on that one. Yeah thanks so much
On Fri, 27 May 2022,20:22 Carline, Paul, <Paul.Carline@:fneandemeigency.n^ wrote:
a
Hi
it would be great to host you at Avalon Station. Would you like your
class to come as well or just you and your friends.
I will ask Brent Pritchard who is the officer at Avalon Station for some suitable dates.
Thanks Paul Car line.
2)a
From:
Sent: Friday, May 27, 2022 7:39:04 PM
To: Carline, Paul <Paul.Carline(a)fireandemergencv.nz>
Subject: visit
Hi Paul
Thank you for your work card. I really would like to one day soon come and have a look at the fir e station. I look forward to hearing back from you when you think this might be possible. I really enjoyed your visit to NNC.
Thanks

Notice: This email and any attachments may contain information that may be subject to an obligation of confidence or the subject of legal privilege.
If you received it in error:
1. Please let us know immediately by return email and then delete the email and your reply.
2. You must not use, copy or disclose any of the information contained in this email.
There is no warranty that this email is error or virus free.
If this is a private communication, it does not represent the views of the organisation.
Notice: This email and any attachments may contain information that may be subject to an obligation of confidence or the subject of legal privilege.
If you received it in error:
1. Please let us know immediately by return email and then delete the email and your reply.
2. You must not use, copy or disclose any of the information contained in this email.
There is no warranty that this email is error or virus free.
If this is a private communication, it does not represent the views of the organisation.
|
From: |
Fiona Crawford |
|
To: Cc: |
Carline, Paul Megan McCarthy; Allan, Mirren |
|
Subject: |
Re: Monday 10:15? |
|
Date: |
Monday, 13 June 2022 11:33:42 am |
|
Attachments: |
image006.png |
Thanks Paul,
It's just one class who missed it, so might be easier just to go into the classroom and Megan could have her laptop set up.
How does that sound? Megan could pick you up from reception?
Thanks
Fiona
On Mon, Jun 13, 2022 at 11:17 AM Carline, Paul <Paul.Carline@fireandemergency.nz> wrote:
^ (2)(a
classes. I
Hi Megan, I am all set for tomorrow with a fire safety talk for the two,
shall be there by 10:05 to set myself up in the hall. Are you able to provide a laptop with
access to the large screen in the hall please? I will be showing from You Tube, the Bradford Soccer Stadium Fire in a five minute video clip.
Looking forward to coming tomorrow.
Nga mihi
Fire Awareness Practitioner and Fire Wise Ambassador.
Alcohol Impairment Educator.
Trentham Fire Station.
545 Fergusson Drive, Trentham.
Upper Hutt 5018.
Wellington District, Te Upoko.
![]() |
' 2)a |
Nga uara - Values | Kia Tika - We do the Right Thing | Manaakitanga - We serve and Support | Whanaungatanga - We are better together | Auahatanga - We Strive to Improve
From: Megan McCarthy <mh@naenae-college.school.nz>
Sent: Tuesday, 31 May 2022 4:05 pm
To: Fiona Crawford <cdf@naenae-college.school.nz>
Cc: Carline, Paul <Paul.Carline@fireandemergency.nz>
Subject: Re: Monday 10:15?
Thanks, confirming 14th June (Tuesday)
Megan McCarthy (she/her)
Head of Department of Performing Arts
NAENAE COLLEGE
910 High Street, Private Box 31-171, Lower Hutt, New Zealand
Phone No: 04 567 7175
Extension internal-only 806
' 2)a
Moblie:
On Tue, 31 May 2022 at 15:34, Fiona Crawford <cdf@naenae-college.school.nz> wrote:
Looking at the calendar, it should work. I'll leave Megan to confirm.
Thanks
Fiona
On Tue, May 31, 2022 at 2:47 PM Carline, Paul
<Paul.Carline@fireandemergency.nz> wrote:
Hi Fiona, busy on the 13th, am free the 14th July 10:15. Does this suit?
Cheers Paul.
From: Fiona Crawford <cdf@naenae-college.school.nz> Sent: Monday, 30 May 2022 12:55 pm
To: Carline, Paul <Paul.Carline@fireandemergency.nz> Cc: Megan McCarthy <mh@naenae-college.school.nz> Subject: Re: Monday 10:15?
Sorry Paul, I didn't say the date. Would the 13th work?
Thanks
On Mon, May 30, 2022 at 10:51 AM Fiona Crawford <cdf@naenae-college.school.nz> wrote:
Hi Paul,
Would Monday 10:15 suit you to deliver the fire education programme to the class who missed it?
I have cced in Megan the class teacher so you will also have direct contact should you need it.
Thanks heaps
Fiona
-
Fiona Crawford (she/her)
Assistant Principal
NAENAE COLLEGE
910 High Street, Private Box 31-171, Lower Hutt, New Zealand
Phone No: 04 567 7175 Ext: 837
Instagram pages: nnc_nz and naenaecollege_careers
Facebook Pages: nncolsport and naenae college
Youtube: Naenae College NZ Official
Fiona Crawford (she/her)
Assistant Principal
NAENAE COLLEGE
910 High Street, Private Box 31-171, Lower Hutt, New Zealand
Phone No: 04 567 7175 Ext: 837
Instagram pages: nnc_nz and naenaecollege_careers Facebook Pages: nncolsport and naenae college
Youtube: Naenae College NZ Official
Notice: This email and any attachments may contain information that may be subject to an obligation of confidence or the subject of legal privilege.
If you received it in error:
1. Please let us know immediately by return email and then delete the email and your reply.
2. You must not use, copy or disclose any of the information contained in this email.
There is no warranty that this email is error or virus free.
If this is a private communication, it does not represent the views of the organisation.
Fiona Crawford (she/her)
Assistant Principal
NAENAE COLLEGE
910 High Street, Private Box 31-171, Lower Hutt, New Zealand
Phone No: 04 567 7175 Ext: 837
Instagram pages: nnc_nz and naenaecollege_careers
Facebook Pages: nncolsport and naenae college
Youtube: Naenae College NZ Official
Notice: This email and any attachments may contain information that may be subject to an obligation of confidence or the subject of legal privilege.
If you received it in error:
1. Please let us know immediately by return email and then delete the email and your reply.
2. You must not use, copy or disclose any of the information contained in this email.
There is no warranty that this email is error or virus free.
If this is a private communication, it does not represent the views of the organisation.
Fiona Crawford (she/her)
Assistant Principal
NAENAE COLLEGE
910 High Street, Private Box 31-171, Lower Hutt, New Zealand
Phone No: 04 567 7175 Ext: 837
Instagram pages: nnc_nz and naenaecollege_careers
Facebook Pages: nncolsport and naenae college
Youtube: Naenae College NZ Official
|
From: |
Megan McCarthy |
|
To: |
Carline, Paul |
|
Subject: |
Re: Monday 10:15? |
|
Date: |
Monday, 13 June 2022 11:38:55 am |
|
Attachments: |
image002.png |
will do. please tx
Ngā mihi
' 2)a
as you arrive, sign in at school office. I'll come collect.
Megan McCarthy (she/her)
Head of Department of Performing Arts
NAENAE COLLEGE
910 High Street, Private Box 31-171, Lower Hutt, New Zealand Phone No: 04 567 7175
Extension internal-only 806
9(2)a
Moblie:
On Mon, 13 Jun 2022 at 11:35, Carline, Paul <Paul.Carline@fireandemergency.nz> wrote:
That will work.
See you tomorrow.
Thanks Paul.
From: Fiona Crawford <cdf@naenae-college.school.nz>
Sent: Monday, 13 June 2022 11:33 am
To: Carline, Paul <Paul.Carline@fireandemergency.nz>
Cc: Megan McCarthy <mh@naenae-college.school.nz>; Allan, Mirren
<Mirren.Allan@fireandemergency.nz>
Subject: Re: Monday 10:15?
Thanks Paul,
It's just one class who missed it, so might be easier just to go into the classroom and Megan could have her laptop set up.
How does that sound? Megan could pick you up from reception?
Thanks
Fiona
On Mon, Jun 13, 2022 at 11:17 AM Carline, Paul <Paul.Carline@fireandemergency.nz> wrote:
2 (2)(a
Hi Megan, I am all set for tomorrow with a fire safety talk for the two, classes. I shall be there by 10:05 to set myself up in the hall. Are you able to provide a laptop with access to the large screen in the hall please? I will be showing from You Tube, the Bradford Soccer Stadium Fire in a five minute video clip.
Looking forward to coming tomorrow.
Nga mihi
Fire Awareness Practitioner and Fire Wise Ambassador.
Alcohol Impairment Educator.
Trentham Fire Station.
545 Fergusson Drive, Trentham.
Upper Hutt 5018.
Wellington District, Te Upoko.
![]() |
' 2)a |
Nga uara - Values | Kia Tika - We do the Right Thing | Manaakitanga - We serve and Support | Whanaungatanga -We are better together | Auahatanga - We Strive to Improve
From: Megan McCarthy <mh@naenae-college.school.nz>
Sent: Tuesday, 31 May 2022 4:05 pm
To: Fiona Crawford <cdf@naenae-college.school.nz>
Cc: Carline, Paul <Paul.Carline@fireandemergency.nz>
Subject: Re: Monday 10:15?
Thanks, confirming 14th June (Tuesday)
Megan McCarthy (she/her)
Head of Department of Performing Arts
NAENAE COLLEGE
910 High Street, Private Box 31-171, Lower Hutt, New Zealand
Phone No: 04 567 7175
Extension internal-only 806
9(2)a
Moblie:
On Tue, 31 May 2022 at 15:34, Fiona Crawford <cdf@naenae-college.school.nz> wrote:
Looking at the calendar, it should work. I'll leave Megan to confirm.
Thanks
Fiona
On Tue, May 31, 2022 at 2:47 PM Carline, Paul
<Paul.Carline@fireandemergency.nz> wrote:
Hi Fiona, busy on the 13th, am free the 14th July 10:15. Does this suit?
Cheers Paul.
From: Fiona Crawford <cdf@naenae-college.school.nz> Sent: Monday, 30 May 2022 12:55 pm
To: Carline, Paul <Paul.Carline@fireandemergency.nz> Cc: Megan McCarthy <mh@naenae-college.school.nz> Subject: Re: Monday 10:15?
Sorry Paul, I didn't say the date. Would the 13th work?
Thanks
On Mon, May 30, 2022 at 10:51 AM Fiona Crawford <cdf@naenae-college.school.nz> wrote:
Hi Paul,
Would Monday 10:15 suit you to deliver the fire education programme to the class who missed it?
I have cced in Megan the class teacher so you will also have direct contact should you need it.
Thanks heaps
Fiona
-
Fiona Crawford (she/her)
Assistant Principal
NAENAE COLLEGE
910 High Street, Private Box 31-171, Lower Hutt, New Zealand
Phone No: 04 567 7175 Ext: 837
Instagram pages: nnc_nz and naenaecollege_careers
Facebook Pages: nncolsport and naenae college
Youtube: Naenae College NZ Official
Fiona Crawford (she/her)
Assistant Principal
NAENAE COLLEGE
910 High Street, Private Box 31-171, Lower Hutt, New Zealand
Phone No: 04 567 7175 Ext: 837
Instagram pages: nnc_nz and naenaecollege_careers
Facebook Pages: nncolsport and naenae college
Youtube: Naenae College NZ Official
Notice: This email and any attachments may contain information that may be subject to an obligation of confidence or the subject of legal privilege.
If you received it in error:
1. Please let us know immediately by return email and then delete the email and your reply.
2. You must not use, copy or disclose any of the information contained in this email.
There is no warranty that this email is error or virus free.
If this is a private communication, it does not represent the views of the organisation.
Fiona Crawford (she/her)
Assistant Principal
NAENAE COLLEGE
910 High Street, Private Box 31-171, Lower Hutt, New Zealand
Phone No: 04 567 7175 Ext: 837
Instagram pages: nnc_nz and naenaecollege_careers
Facebook Pages: nncolsport and naenae college
Youtube: Naenae College NZ Official
Notice: This email and any attachments may contain information that may be subject to an obligation of confidence or the subject of legal privilege.
If you received it in error:
1. Please let us know immediately by return email and then delete the email and your reply.
2. You must not use, copy or disclose any of the information contained in this email.
There is no warranty that this email is error or virus free.
If this is a private communication, it does not represent the views of the organisation.
Fiona Crawford (she/her)
Assistant Principal
NAENAE COLLEGE
910 High Street, Private Box 31-171, Lower Hutt, New Zealand
Phone No: 04 567 7175 Ext: 837
Instagram pages: nnc_nz and naenaecollege_careers
Facebook Pages: nncolsport and naenae college
Youtube: Naenae College NZ Official
Notice: This email and any attachments may contain information that may be subject to an obligation of confidence or the subject of legal privilege.
If you received it in error:
1. Please let us know immediately by return email and then delete the email and your reply.
2. You must not use, copy or disclose any of the information contained in this email.
There is no warranty that this email is error or virus free.
If this is a private communication, it does not represent the views of the organisation.
From:
To:
Subject:
Date:
Attachments:
mh
Carline, Paul
RE: Naenae College. MFA Activations. Wednesday, 15 June 2022 5:26:51 pm image004.png
Thank you so much for your time and energy. You guys are the real superheroes of our community.
It was an absolute pleasure to host you.
Sent from my Galaxy
--------Original message --------
From: "Carline, Paul" <Paul.Carline@fireandemergency.nz>
Date: 15/06/22 4:34 pm (GMT+12:00)
To: Megan McCarthy <mh@naenae-college.school.nz>, Fiona Crawford <cdf@naenae-college.school.nz>
Cc: "Allan, Mirren" <Mirren.Allan@fireandemergency.nz>, "Hughes, Gareth"
<Gareth.Hughes@fireandemergency.nz>, "Soal, Philip"
<Philip.Soal@fireandemergency.nz>
Subject: Naenae College. MFA Activations.
Hi Megan, sorry I missed you the other day at the end of the session. Your students were great to work with. Thank you for allowing me to return and work with the last class. They interacted well and I believe they have taken on board the messages offered especially on operating the fire alarm manual points.
Looking at our records, those Malicious Calls to the college have dropped off. Hopefully this will continue.
I am always available if required. Stay safe.
Nga mihi
Fire Awareness Practitioner and Fire Wise Ambassador.
Alcohol Impairment Educator.
Trentham Fire Station.
545 Fergusson Drive, Trentham.
Upper Hutt 5018.
Wellington District, Te Upoko.
' 2)a
Paul.Carline@fireandemergency.nz
Nga uara - Values | Kia Tika - We do the Right Thing | Manaakitanga - We serve and Support | Whanaungatanga - We are better together | Auahatanga - We Strive to Improve
Notice: This email and any attachments may contain information that may be subject to an obligation of confidence or the subject of legal privilege.
If you received it in error:
1. Please let us know immediately by return email and then delete the email and your reply.
2. You must not use, copy or disclose any of the information contained in this email.
There is no warranty that this email is error or virus free.
If this is a private communication, it does not represent the views of the organisation.
|
From: |
Fiona Crawford |
|
To: Cc: |
Carline, Paul Megan McCarthy; Allan, Mirren; Hughes, Gareth; Soal, Philip |
|
Subject: |
Re: Naenae College. MFA Activations. |
|
Date: |
Wednesday, 15 June 2022 7:53:08 pm |
|
Attachments: |
image004.png |
Thanks again Paul! Really appreciate the effort!
Long may the ringing of the sirens be silent at Naenae!
Cheers
Fiona
On Wed, Jun 15, 2022 at 4:34 PM Carline, Paul <Paul.Carline@fireandemergency.nz> wrote:
Hi Megan, sorry I missed you the other day at the end of the session. Your students were great to work with. Thank you for allowing me to return and work with the last class. They interacted well and I believe they have taken on board the messages offered especially on operating the fire alarm manual points.
Looking at our records, those Malicious Calls to the college have dropped off. Hopefully this will continue.
I am always available if required. Stay safe.
Nga mihi
Fire Awareness Practitioner and Fire Wise Ambassador.
Alcohol Impairment Educator.
Trentham Fire Station.
545 Fergusson Drive, Trentham.
Upper Hutt 5018.
Wellington District, Te Upoko.

Paul.Carline@fireandemergency.nz
Ngā uara - Values | Kia Tika - We do the Right Thing | Manaakitanga - We serve and Support | Whanaungatanga - We are better together | Auahatanga - We Strive to Improve
Notice: This email and any attachments may contain information that may be subject to an obligation of confidence or the subject of legal privilege.
If you received it in error:
1. Please let us know immediately by return email and then delete the email and your reply.
2. You must not use, copy or disclose any of the information contained in this email.
There is no warranty that this email is error or virus free.
If this is a private communication, it does not represent the views of the organisation.
Fiona Crawford (she/her)
Assistant Principal
NAENAE COLLEGE
910 High Street, Private Box 31-171, Lower Hutt, New Zealand
Phone No: 04 567 7175 Ext: 837
Instagram pages: nnc_nz and naenaecollege_careers
Facebook Pages: nncolsport and naenae college
Youtube: Naenae College NZ Official
|
From: |
Alex Maehe |
|
To: Subject: |
FAIP Referral: 9(2)(a) |
|
Date: |
Wednesday, 31 August 2022 12:21:44 pm |
|
Attachments: |
FAIP-ReferralJ|||.doc |
Kia ora
PLease find attached a referral for p2)a
--
Ngā mihi
Alex Maehe
Acting Principal
NAENAE COLLEGE
910 High Street, Private Box 31-171, Lower Hutt, New Zealand Phone No: 04 567 7175
Extension internal-only 549
This email message is intended solely for the person or entity to which it is addressed. The information it contains is confidential and may be legally privileged. Any review, retransmission, dissemination or other use of this email may be unlawful. If you are not the intended recipient, please notify us immediately and destroy the email from all sources.
![]() |
EMERGENCY |
NEW ZEALAND
|
Date: |
Time: ||^g | |||
|
Child's |
Ethnicity: ■■ | |||
|
Name: | ||||
|
Residence: |
Prior incidents attended by | |||
|
Age |
Home |
M^^a H |
Fire and Emergency NZ | |
|
DOR |
^2H Institution»:®^ | |||
|
U.v.D Gender | ||||
|
Parent's | ||||
|
Name: | ||||
|
(or caregiver) | ||||
|
Address: |
9(2)a | |||
|
Phone: | ||||
|
Date |
[īI0HB |
Home alone? | ||
|
fire-setting | ||||
|
occurred? | ||||
|
Where did the fire-setting occur? | ||||
|
Home: | ||||
|
School: | ||||
|
Other: (describe) | ||||
|
Details of the fire: What was burnt, extent of damage etc...? | ||||
|
9(2)a | | ||||
|
Why did the fire-setting occur (motivation)? Possibly because .... | ||||
|
Any further data? | ||||
|
Name of person forwarding referral |
Phone contact | |||
|
Alex Maehe |
5677 175 ext 549 | |||
|
Title if appropriate |
REGION - indicate closest area | |||
|
1. Northland / Auckland | ||||
|
Deputy Principal |
2. Hamilton / Tauranga / Gisborne / Taupo | |||
|
3. New Plymouth/Napier/ Palmerston Nth / Wgtn | ||||
|
4. Nelson / Christchurch / Timaru / West Coast | ||||
|
5. Oamaru / Dunedin / Queenstown/lnvercargill | ||||
Please forward by e-mail to FAIP@FireandEmergency.nz
From:
To:
Subject:
Date:
' 2)a
Carline, Paul
Re:
Thursday, 4 May 2023 9:33:40 pm
The questions are what are your guys Time management punctuality
Task/production deadlines
personal appointment
Break and rest times and care of equipment.
I'm wondering if you can answer them for me ?
On Thu, 4 May 2023, 4:26 pm Carline, Paul, <Paul.Carline@fireandemergency.nz> wrote: I am happy to answer your questions. Do want to send a list of questions or maybe even have a Microsoft teams meet.
I hope school is going well for you and you are trying your best.
Cheers Paul Carline
Get Outlook for Android
' 2)a
@naenae-college.school.nz>
Sent: Thursday, May 4, 2023 4:21:29 PM
To: Carline, Paul <Paul.Carline@fireandemergency.nz>
Subject:
9(2)(a)
if you have the time to answer a few questions?
The first question is what time management and punctuality, the second one is about
task/ production deadlines, the third one is about personal appointments, the fourth one is
about break and rest times, and the last one is about the care of equipment.
|
' 2)a |
![]() |
from
Notice: This email and any attachments may contain information that may be subject to an obligation of confidence or the subject of legal privilege.
If you received it in error:
1. Please let us know immediately by return email and then delete the email and your reply.
2. You must not use, copy or disclose any of the information contained in this email.
There is no warranty that this email is error or virus free.
If this is a private communication, it does not represent the views of the organisation.
From:
To:
Subject:
Date:
Attachments:
Tanwen Siencyn
Hailwood, Rochelle
Re: Naenae College Careers Expo and Subject Selection Evening.
Friday, 26 May 2023 11:56:56 am
image001.png
9(2)(a)
will
Thanks for getting back to me Rochelle, totally understand. Yes our be down there on the 7th June. Look forward to meeting you then.
On Thu, May 25, 2023 at 12:20 PM Hailwood, Rochelle
<Rochelle.Hailwood@fireandemergency.nz> wrote:
Kia Ora,
Thank you for your email.
Unfortunately, due to our staffing and resources we are unable to attend this event. All our staff that attend these events are operational firefighters and due to our shift commitments, we can’t attend every event. However, we will be in attendance at the Combined College Pathways Expo which I believe NaeNae College is a part of so are happy to engage with students at that event and offer any assistance we can.
Thank you for your understanding.
Senior Firefighter
Seaview Fire Station
51 Parkside Road
Lower Hutt 5010
rochelle.hailwood@fireandemergency.nz
From: Tanwen Siencyn <ts@naenae-college.school.nz>
Sent: Monday, 22 May 2023 3:17 pm_______________
Out of Scope
To:
iOut of!
|
<Rochelle.Hailwood@fn'eandemergencv.nz>: |
![]() |
|
Subject: Naenae College Careers Expo and Subject Selection Evening. |
Kia Ora Tatou,
We would like to invite you to participate in the Naenae College Careers Expo and Subject Selection Evening.
The Expo will take place on Tuesday the 8th of August from 5 - 7.00pm and will be held at Naenae College assembly hall. We anticipate a good turnout from both students and their whānau, as this event is crucial in helping them make informed decisions about future pathways and careers.
Your participation in this event would be greatly appreciated, as it will allow our students and their whanau to learn more about what you have to offer and the subjects they need to take to pursue their desired careers. We encourage you to bring along interactive resources or any materials that you feel will be helpful in showcasing your organization and its offerings.
If you are interested in participating, please let us know by the 16th of June. We look forward to hearing from you and hope that you will be able to join us for this event.
Nga Mihi,
Naenae College Careers team
Nga mihi
Tanwen Siencyn
HOD Careers and Transition
NAENAE COLLEGE
910 High Street, Private Box 31-171, Lower Hutt, New Zealand
T: 64-4-920-1518
F: 64-4-567 3009
Instagram pages: nnc_nz and naeiiaecollege_careers Facebook Pages: nncolsport and naenae college Youtube: Naenae College NZ Official
Website: https^/www naenae-CQllege.schoQl na
Notice: This email and any attachments may contain information that may be subject to an obligation of confidence or the subject of legal privilege.
If you received it in error:
1. Please let us know immediately by return email and then delete the email and your reply.
2. You must not use, copy or disclose any of the information contained in this email.
There is no warranty that this email is error or virus free.
If this is a private communication, it does not represent the views of the organisation.
Nga mihi
Tanwen Siencyn
HOD Careers aud Transition
NAENAE COLLEGE
910 High Street, Private Box 31-171, Lower Hutt, New Zealand T: 64-4-920-1518
F: 64-4-567 3009
Instagram pages: nnc_nz and naenaecollege_careers
Facebook Pages: nncolsport and naenae college
Youtube: Naenae College NZ Official
Website: https://www.naenae-college.school.nz/
From:
To:
Subject:
Date:
Attachments:
Chris Taylor
Carline, Paul
Re: Naenane College contact for referral forms
Tuesday, 6 June 2023 2:19:32 pm
image004.png
image003.png
Kia ora Paul
Can we go on Monday the 12th, please? I am halfway through the referral forms and should have them completed and sent by tomorrow. What time frame do you want to spend
(9(2)(a)
with each student Chris
)
On Tue, 6 Jun 2023 at 08:46, Carline, Paul <Paul.Carline@fireandemergency.nz> wrote:
Hi Chris, thank you for your email. Sue Stewart has sent you through the Ahi Kura referral forms.
Dates that I have free at the moment are Friday the 9th June, Monday the 12th June before 1pm. Wednesday the 14th June and Thursday the 15th June. Please let me know what suits. I can send dates for the following week if you wish.
Have enclosed a couple of electronic posters to put up on your social media sites if you wish. One is for free home fire safety visits, another for Ahi Kura.
Some thing you could show your students below if you wish or wait till I give my presentation.
• A person commits an offence if the person knowingly gives or causes to be given to any personnel or brigade any false alarm of fire. (2) A person who commits an offence under this section is liable on conviction,— (a) in the case of an individual, to a term of imprisonment not exceeding 6 months or to a fine not exceeding $75,000, or both; or (b)
Fire and Emergency New Zealand Bill - New Zealand Legislation
www.legislation.govt.nz/bill/government/2016/0148/21.0/DLM6888419.html
Was this helpful?
Looking forward to working with your students.
Nga mihi
Ahikura Practitioner and Fire Wise Ambassador.
Road Safety Educator.
Trentham Fire Station.
545 Fergusson Drive, Trentham.
Upper Hutt 5018.
Wellington District, Te Upoko.
![]() |
2)a |
Paul.Carline@fireandemergency.nz
Nga uara - Values | Kia Tika - We do the Right Thing | Manaakitanga - We serve and Support | Whanaungatanga - We are better together | Auahatanga - We Strive to Improve
From: Chris Taylor <trc@naenae-college.school.nz>
Sent: Friday, 2 June 2023 9:13 am
To: Carline, Paul <Paul.Carline@fireandemergency.nz>
Subject: Naenane College contact for referral forms
Ngā mihi
Chris Taylor
Deputy Principal
NAENAE COLLEGE
T: 04 567 7175
Address: 910 High Street, Avalon, Lower Hutt 5011
Instagram pages: nnc_nz and naenaecollege_careers
Facebook Pages: nncolsport and naenae college
Youtube: Naenae College NZ Official
Website: https://www.naenae-college.school.nz/
![]() |
Notice: This email and any attachments may contain information that may be subject to an obligation of confidence or the subject of legal privilege.
If you received it in error:
1. Please let us know immediately by return email and then delete the email and your reply.
2. You must not use, copy or disclose any of the information contained in this email.
There is no warranty that this email is error or virus free.
If this is a private communication, it does not represent the views of the organisation.
Chris Taylor
Carline, Paul
Subject: I have attached the 92 referrals for Monday next week
Date: Wednesday, 7 June 2023 11:57:49 am
Attachments: SKM_C308-C323060708290.pdf
Ngā mihi
Chris Taylor
Deputy Principal
NAENAE COLLEGE
T: 04 567 7175
Address: 910 High Street, Avalon, Lower Hutt 5011 Instagram pages: nnc_nz and naenaecollege_careers Facebook Pages: nncolsport and naenae college
Youtube: Naenae College NZ Official
Website: https://www.naenae-college.school.nz/
t**n*w
|
Fire and Emergency collects the information in this form to enable you to refer a young person to our Ahikura Programme, and to organise an appropriate intervention. We collect personal information about you including your name, address, and phone number in case we need to contact you about the referral. Please forward by e-mail to Ahikura@lFirōandEmerqency.nz |
![]() |
|
Where did the fire-setting occur? □Home □School □Other: cfescnte/n next box) __ _____ Details of the fire: What was burnt, extent of damage etc...? |
Why did the fire-setting occur (motivation)?
Any further data?
Name of person forwarding referral
Title if appropriate / ^4 Awfa /__ Previous Ahikura participation
|
Phone contact and |
![]() |
|
REGION - indicate closest area |
□Northland / Auckland
□Hamilton / Tauranga / Gisborne / Taupo
□New Plymouth/Napier/ Palmerston Nth / Wgti
□Nelson / Christchurch / Timaru / West Coast □Oamaru / Dunedin / Queenstown/lnvercargill
a
© FIRE
....... .... EMERGENCY
Fire and Emergency collects the information in this form to enable you to refer a young person to our Ahikura Programme, and to organise an appropriate intervention. We collect personal information about you including your name, address, and phone number in case we need to contact you about the referral. Please forward by e-mail to Ahikura@FireandEmergency.nz
Client’s Name
la
Date J
Email of
Caregiver
Age
ia
P(2)a
|
Gender Parent’s name: (or caregiver) Address: | ![]() |
![]() |
Residence: (2)a |
Ethnicity
►a
Prior incidents attended by Fire and Emeraencv NZ
![]() |
|
Where di<nhe fire-setting occur? □Home QSchool |
Why did the fire-setting occur (motivation)?
Any further data?
|
Name of person forwarding referral |
Phone contact and_email JBBBBLAA^^/' '^ |
V-Sr^MZ |
|
Title if approbate |
REGION - indicate closest area | |
|
fyflu7y /^'nc 'Ma/ |
□Northland / Auckland □Hamilton / Tauranga / Gisborne / Taupo | |
|
Previous Ahikura participation |
□New Plymouth/NapierZ Palmerston Nth ^Wgtrp | |
|
□Nelson / Christchurch / Timaru / West Coast | ||
|
□Oamaru / Dunedin / Queenstown/lnvercargill |
mwxxaumi
Fire and Emergency collects the information in this form to enable you to refer a young person to our Ahikura Programme, and to organise an appropriate intervention. We collect personal information about you including your name, address, and phone number in case we need to contact you about the referral. Please forward by e-mail to Ahikura&FireandEmergency.nz
'(2)a
Client’s Name Date
[Ethnicity
Email of Caregiver
la
Residence:
Prior incidents attended by Fire and
Age
K2)a
)(2)a
9(2)a
D.O.B
ia
Gender__
Parents name: (or caregiver)
Address:
ia
Phone:
Email:
Date fire setting occurred
Home alone
□Yes ONo
Number of previous incidents
Where did the fire-setting occur?
□Home
□School
□Other (describe in next box)
Details of the fire: What was burnt, extent of dam;
?
Why did the fire-setting occur (motivation)?
Any further data?
Name of persortforwa^ding referral
Title if appropriate/
fit J ^C'/^
Previous^hikura participation
ia
□Northland / Auckland
□Hamilton / Tauranga / Gisborne / Taupo
□New Plymouth/Napier/ Palmerston Nth //Wgtn
□Nelson / Christchurch / Timaru I West Co □Oamaru / Dunedin / Queenstown/lnvercargill
|
From: |
Nic Richards |
|
To: |
Bristow, Grant |
|
Subject: |
Please redirect your inquiry RE: Aerial Drone Flights Attn: Janette Melrose |
|
Date: |
Tuesday, 22 August 2023 2:58:38 pm |
Kia ora
My role as Principal of Naenae College has concluded and I am now on leave until 16 July. This email address is no longer active. To contact Naenae College administration please email admin@naenae-college.school nz and in the case of an emergency, please call the college directly.
To contact me in my new role as Principal of Westland High School from 17 July, please use the following email: office@westlandhigh.school nz
Ngā mihi
Nic Richards
*Nic Richards*
*Principal*
*NAENAE COLLEGE*
910 High Street, Private Box 31-171, Lower Hutt, New Zealand
T: 64-4-920-1518
F: 64-4-567 3009
Instagram: nnc_nz
Instagram pages: nnc_nz and naenaecollege_careers
Facebook Pages: nncolsport and naenae college
Youtube: Naenae College NZ Official
Website: https://www.naenae-college.school.nz/
*This email message is intended solely for the person or entity to which it is addressed. The information it contains is confidential and may be legally privileged. Any review, retransmission, dissemination or other use of this email may be unlawful. If you are not the intended recipient, please notify us immediately and destroy the email from all sources. *
|
tyc@naenae-college.school.nz on behalf of Lisa Cameron Bristow, Grant | ||||||
|
Kia ora Grant
I see no problems in this event happening on Sunday.
Can I please confirm the actual date Sunday 24 August?
Kind regards
Trish Crowley
Principal's PA
----------Forwarded message ---------
From: Bristow, Grant <Grant.Bristow@fireandemergency.nz>
Date: Tue, Aug 22, 2023 at 3:10 PM
Subject: FW: Aerial Drone Flights Attn: The Principal
To: admin@naenae-college.school.nz <admin@naenae-college.school.nz>
Good afternoon,
Please find attached letter requesting the possibility of a drone flight over your school site. Apologies that this is still addressed to outgoing principal Nic Richards.. Any questions please refer to the letter or feel free to give me a call on the numbers below.
Kind Regards,
Grant Bristow
Station Officer
Seaview Station
Hutt/ Wellington District
Ph.
9(2)(a)
|
Cell |
![]() |
|
H |
18 |
H |
H |
H |
■ |
Notice: This email and any attachments may contain information that may be subject to an obligation of confidence or the subject of legal privilege.
If you received it in error:
1. Please let us know immediately by return email and then delete the email and your reply.
2. You must not use, copy or disclose any of the information contained in this email.
There is no warranty that this email is error or virus free.
If this is a private communication, it does not represent the views of the organisation.
Admin
Naenae College 910 High Street Avalon
Lower Hutt 5011
19 August 2023
Naenae College 910 High Street, Avalon
Lower Hutt 5011
Attn: Nic Richards
Re. Unmanned Aircraft (Drone) Flights
Good afternoon Nic,
My name is Grant Bristow and I am an Operational Officer for Fire and Emergency New Zealand based here in Lower Hutt, with my day-to-day activities run usually from Seaview Fire Station in the Seaview industrial area.
Part of my job is also involvement with our local Unmanned Aircraft Systems, (UAS), or drones as most will know them by. One of our roles is to conduct aerial mapping of sites such as yours for prior intelligence gathering purposes should the worst-case scenario ever happen. The survey would involve the collection of imagery by the Unmanned Aircraft and would only be used for the purpose for which it is collected.
All Fire and Emergency New Zealand UAS operations are conducted under the authority of a Part 102 Unmanned Aircraft Operator Certificate issued by the Civil Aviation Authority of New Zealand. Fire and Emergency New Zealand pilots hold a current pilot certificate for this particular discipline.
Given this information, would you and your friendly staff be happy for us to conduct flights at a time and day appropriate to yourselves in order to gain this imagery? At this stage, we would hopefully be looking at a Sunday when there would be no/ very few people on the school grounds, (weather permitting). This helps with our compliance as well as providing a better safety buffer should any issues arise with the craft.
If requested, we can also provide you with a usb drive of 2D footage of your school.
I’m happy to discuss this further should you have any questions or queries and can be contacted during the
day on cell.
9(2)a
Kind Regards,
Grant Bristow
Station Officer
Seaview Fire Station 51 Parkside Road Seaview
Lower Hutt
|
tyc@naenae-college.school.nz on behalf of Admin Account Bristow, Grant | ||||||
|
Hi Grant - thanks for letting us know. Hopefully the weather will get bettr soon.
The Principal has asked if it is possible to get a copy of a aerial view of the school for our records. Would this be possible?
Regards
Trish Crowley
Principal's PA
On Fri, Sep 15, 2023 at 3:37 PM Bristow, Grant <Grant.Bristow@,fireandemergency.nz> wrote:
Good Afternoon,
Sorry for any delay in getting back to you.
Just a courtesy email to let you know that the Drone (UAS) flights will weather permitting be occurring over the next few weeks as mentioned earlier. Should you have any problems or questions, please don’t hesitate to get in touch.
Kind Regards,
Grant Bristow
Station Officer
Seaview Station
Hutt/ Wellington District
9(2)(a)
Cell.
3 (2)a
|
1 |
I |
i |
I |
i |
i |
Notice: This email and any attachments may contain information that may be subject to an obligation of confidence or the subject of legal privilege.
If you received it in error:
1. Please let us know immediately by return email and then delete the email and your reply.
2. You must not use, copy or disclose any of the information contained in this email.
There is no warranty that this email is error or virus free.
If this is a private communication, it does not represent the views of the organisation.
|
H |
B |
B |
B |
B |
B |
Notice: This email and any attachments may contain information that may be subject to an obligation of confidence or the subject of legal privilege.
If you received it in error:
1. Please let us know immediately by return email and then delete the email and your reply.
2. You must not use, copy or disclose any of the information contained in this email.
There is no warranty that this email is error or virus free.
If this is a private communication, it does not represent the views of the organisation.
Admin
Naenae College 910 High Street Avalon
Lower Hutt 5011